

深圳万科中心是如何将环境保护和能源节约实现到建筑上的一个非常好的例子。这实验性的建筑设计概念来自Stevenholl的“漂浮的水平摩天楼”,经过十年的发展和完善,已成为一个真正具有可持续性发展的标志性景观站立在城市的高度。

VIP区的设计灵感起始于Steven Holl建筑工业外壳带来的“盒中盒”概念。每一个功能体块都代表着一个空间个体。我们用暖色木材来制造与混凝土和金属外盒的对比。

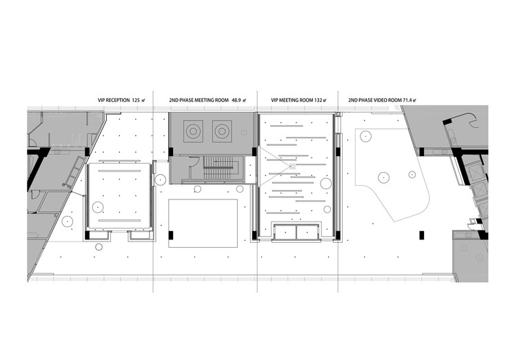
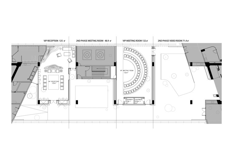
原建筑6层的大量天光窗洞被利用在室内设计中,是我们设计的原点之一。空间布局巧妙对应着这些天窗位置,给室内带来一些天光,意味着给建筑内部注入自然的气息。
VIP接待室的设计沿承了枯山水的感觉,地面像山势一样缓缓变化,与仿佛森林般竖向的格栅制造了阴影与房间之中的柔软流动。
国际会议室放置半圆桌,使人们能够聚拢,并且在开视频会议的时候,能够不只是面对屏幕而是也可以看到彼此。
木材质和深灰的地毯既吸音降噪,同时又隔热保温,从而创造了会议室相对独立的空间环境,并为室内带入了与冷酷的建筑外壳不同的柔软而温暖的质感。


整个项目传达着万科对人与人、人与自然、人与社会关系的纯朴探索,以谦卑与低调的姿态沟通自然万物与往来市井。这也是毕路德对一如既往在作品里秉持的“至善和谐”的品牌理念进行的又一次的美好诠释。










