
•
帕鲁普, 丹麦
-
建筑设计: C.F. Møller Architects
- 面积: 50000 m²
- 项目年份: 2021
-
摄影师:Martin Schubert
-
厂家: Louis Poulsen

来自建筑师。Mascot International A/S是欧洲领先工作服制造商之一,它的新总部及物流中心汇聚了这个企业在丹麦所有的活动,并将成为此地独特的地标。


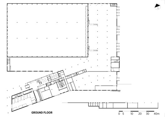
公司总部外形是动态的锥形体,从大片的绿色草地中崭露头角。面向通往丹麦锡尔克堡(Silkeborg)和海宁(Herning)高速的主立面由大面积的透明玻璃打造,过路的行人可以看到内部的活动、办公空间、礼堂、健身房和位于屋顶的全景花园及餐厅。主立面的前方有着一个带水池的梯田花园,它可以收集雨水,也可以映照出建筑物的身影,突出主入口的存在感。



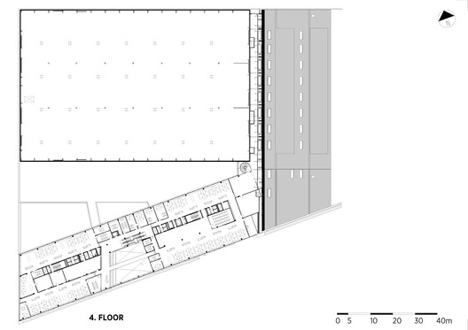
全新建立的总部大楼也是这个企业的行政及物流中心所在之处。所有的设施都围绕着贯穿整个建筑的中庭设置,并为公司中所有部门的内部工作流打造了一个明亮、开放、充满活力的公共平台空间。



Mascot现已成长到一个前所未有的规模,因此,C.F. Møller建筑事务所已经在着手设计另一个带有物流设施的高架仓库,以此将总部大楼原有的规模和容量扩张到两倍之大。
译者:黄菁菲 Jingfei Huang


















































