
•
Dublin, 爱尔兰
-
建筑师: Coady Architects
- 面积: 410 m²
- 项目年份: 2019
-
摄影师:Andrew Campion
-
厂家: Bunzl CDS, Kilkenny Aluminium, Pergo Flooring, Sheelin Group, VMZINC

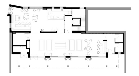
场地位于圣哥伦巴学院的保护性结构历史遗址中。总体的设计目标是在一个老旧附属建筑上,为圣哥伦巴学院的学生、教职工与访客创建一个公共社交中心,原建筑一层留有教室,建于20世纪中叶,质量较差。附属建筑建在历史悠久的私人花园地平下约3m处,紧靠在保留边界墙的外侧。


设计以详尽的遗产报告、重要性评估与影响评估为基础,由一部分单层与一部分二层建筑组成,新建筑取代原有结构。二层的石墙面上另设有开口,与花园内新的遮阳棚与相关设施相连,成为对场地历史中玻璃温室的回应。



这个二层的建筑在较低的一层设有入口、卫生间与锅炉房,在二层有一个服务间,与朝南的遮阳棚相连,为非正式与正式活动提供了较大的流通互动社交空间。该建筑物成为校园建筑物之间连通循环路线的一部分。较低层的入口通向楼梯,直达二层的社交空间、私人花园与相连的校园步行路线。

建筑性质涉及对一部分历史悠久花园围墙的解构与复建。在进行工作之前,设计师进行了全面的历史研究与记录工作,以确保复建工作与最佳的保护原则相符合。

















