

中关村集成电路设计园(IC PARK)是致力打造IC产业生态的综合创新产业园区。业主方希望该产业园不仅能够成为吸引全球集成电路资源的世界一流专业园区,打造全生命周期的园区环境,同时还能以一种适用于高科技创新主力军交流的场所,来营造具有人情味的园区氛围。

设计剖析
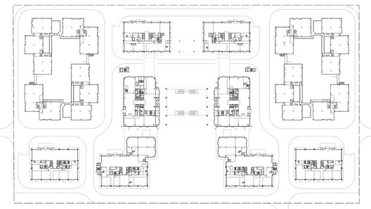
项目地处中关村国家自主创新示范区核心位置,地块中央有一条需要保留的宽60m、长800m的城市绿化带。尊重城市设计导则,项目具有三大特点:大尺度的开放空间、轴线对称的规划布局、中高边低的天际线。此外,为了创造适用于高科技创新主力军交流的场所,设计者提议用一种“多维交互”的新型空间模式,让园区的交流环境分出层级和属性,呈现出既交互又不干扰的立体空间。

整体规划
项目整体布局采用一心、二园、三轴、三广场的布局特点,高层办公位于园区中心位置,花园式独栋办公位于高层两侧。园区配套商业则主要集中在高层底部相连的核心云台区域。

一心——凝聚核心场所
结合两侧高层建筑之间的首层架空连廊、屋顶花园及下沉广场共同形成IC PARK的核心场所。云台区域布置图书馆、文化活动中心、咖啡厅等多种社交功能空间。云台上的屋顶花园布置健身跑道、休闲区域、智能互动场景等功能。下沉庭院位于云台下方,该区域以宜人的小尺度设计出丰富的庭院布局。

二园——丰富办公需求
结合园区内部50m宽绿化带,项目设计布置了两组具有围合感的小型办公组团。

三轴——编织城市之网
项目利用架空层形成贯穿整个园区的三条轴线,将园区主要空间串联起来。

城市轴:60m宽绿轴作为大尺度的开放空间。
视线通廊:贯穿园区功能主线,引导交通。
园区绿轴:连接东西独栋办公区的桥梁。

三广场——完善功能场
园区的精神堡垒——创业广场;
园区活力核心区——创客公园,由云平台+活力之谷打造;
园区后花园——创智空间。
_North_Square%E2%80%94%E2%80%94%E4%B8%89%E4%B9%98%E4%BA%8C%E6%91%84%E5%BD%B1.jpg?1571023571)
建筑设计
项目立面上将“芯片”的工艺美感引入其中,采用透射率较高的玻璃幕墙体系,局部点缀米色石材,通过错拼手法体现出IC产业的科技感,架空裙房部分通过连续的水平线条体现出漂浮感。

绿色设计
在生态环境上,项目整体设计以人为本,尊重自然环境,考虑可持续发展设计要求,从节能、节水、节地、节材等策略入手,进行深入设计。目前园区已通过绿建二星、三星认证及“LEED CS”金级认证。

植根城市、定位轴心、技术集合、互联共享、绿色低碳,IC产业园正以成熟的姿态迎接世界的眼光。







_North_Square%E2%80%94%E2%80%94%E4%B8%89%E4%B9%98%E4%BA%8C%E6%91%84%E5%BD%B1.jpg?1571023571)











