主页

深圳中广核大厦 / 孟岩|都市实践

深圳中广核大厦 / 孟岩|都市实践 - 2 的图像 33深圳中广核大厦 / 孟岩|都市实践 - 3 的图像 33深圳中广核大厦 / 孟岩|都市实践 - 4 的图像 33深圳中广核大厦 / 孟岩|都市实践 - 5 的图像 33深圳中广核大厦 / 孟岩|都市实践 - 更多图片+ 28

深圳, 中国
  • 主持建筑师: 孟岩
  • 项目经理: 许小东
  • 项目建筑师: 饶恩辰、张震、罗仁钦(建筑) | 于晓兰(景观)
  • 项目组: 李立德、吴春英、孙艳花、谢盛奋(建筑)| 林挺、魏志姣、刘洁(景观)| 朱加林、徐罗以(技术总监)
  • 业主: 中国广核集团有限公司
  • 室内设计: 深圳市共和设计工程有限公司
  • 施工图: The Architectural Design & Research Institute of Guangdong Province
  • 钢结构: 广州容柏生建筑工程设计深圳事务所
  • 标识设计: 黄扬设计
  • Mechanical & Electrical Systems: 柏诚工程技术
  • 城市: 深圳
  • 地区: 中国
展开收起
深圳中广核大厦 / 孟岩|都市实践 - 7 的图像 33
东南侧. © 陈冠宏

经过十余年的超速发展, 深圳中心区已经初具规模。然而伴随着每座单体建筑对自身独特性的极力追求,建筑物之间缺乏敏感的呼应,城市中心建筑组群的完整性正在丧失。重归到高层建筑的基本特点:高效舒适、节能环保、造型明晰,回归建筑经典,有时反能使建筑物在当今纷繁混杂的城市背景中脱颖而出。

深圳中广核大厦 / 孟岩|都市实践 - 2 的图像 33
东侧局部. © 杨超英

用形体和空间组织来表达建筑在节制和内敛之中蕴藏的能量,使中广核总部大厦远观有清晰简明的形体轮廓,近观又有丰富多变的肌理层次。两座大楼形体尽量向东侧充满基地,并且在平面和空间上相互交错,最大限度地利用东西两侧景观资源的同时,形成两楼咬合、互动的整体形象。

深圳中广核大厦 / 孟岩|都市实践 - 25 的图像 33
空间分析图

建筑立面肌理在简洁的体型之中传达数字化的美学特征,以单元化、标准化的重复以及变异,组合发展出一整套建筑立面语言体系。建筑表面弃用了大面积的玻璃幕墙,而回归到窗墙体系,塔楼窗洞在大小、方向、凹凸上的变化, 逐渐过渡到裙楼部分的网格裂变,并以此支撑起悬浮在空中的几组公共空间。

深圳中广核大厦 / 孟岩|都市实践 - 9 的图像 33
东侧局部. © 陈冠宏
深圳中广核大厦 / 孟岩|都市实践 - 11 的图像 33
北楼局部. © 陈冠宏

用匀质模块基础上的单元作渐变以及局部剧变,这种空间构成体系暗示了核电作为未来能源支柱产业的形象特征。

深圳中广核大厦 / 孟岩|都市实践 - 12 的图像 33
室内. © 陈冠宏
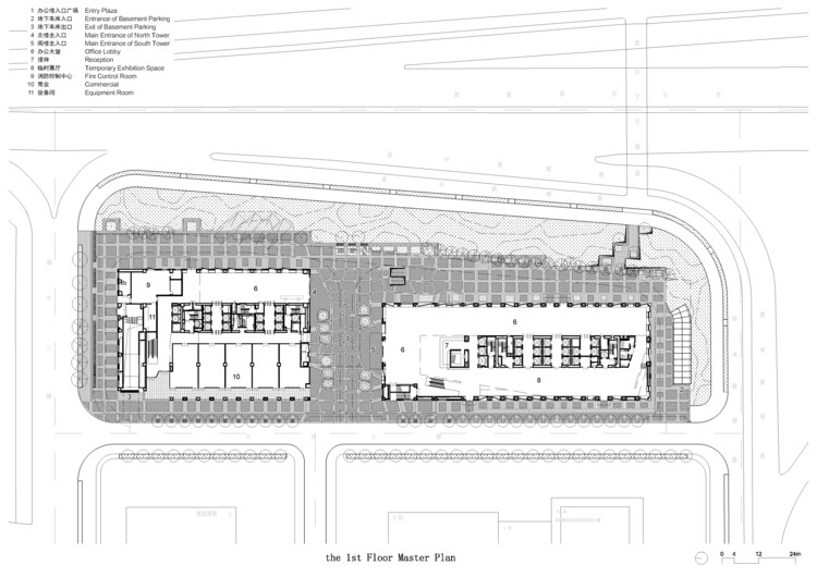
深圳中广核大厦 / 孟岩|都市实践 - 27 的图像 33
一层总平面图
深圳中广核大厦 / 孟岩|都市实践 - 5 的图像 33
室内. © 陈冠宏

夜晚,灯光透过变化的格网呈现出晶体般的表面,整个建筑外部又似乎成了一个可以容纳无限变化的显示屏。外墙采用金属质感的较深沉的色彩,进一步强化了大型企业总部的气度。整个设计展现出一个国际化企业所具有的严谨、稳健、前瞻的形象特征。

深圳中广核大厦 / 孟岩|都市实践 - 4 的图像 33
东侧局部. © 陈冠宏

项目图库

查看全部显示较少
关于这家事务所
引用: "深圳中广核大厦 / 孟岩|都市实践" [CGN Headquarters Building / MENG YAN | URBANUS] 07 8月 2018. ArchDaily. Accesed . <https://www.archdaily.cn/cn/899624/shen-zhen-zhong-yan-he-da-sha-urbanus-du-shi-shi-jian>

您已开始关注第一个帐户了!

你知道吗?

您现在将根据您所关注的内容收到更新!个性化您的 stream 并开始关注您最喜欢的作者,办公室和用户.