

点点一品是一家来自香港的茶餐厅,去过香港的人都知道,有街巷的地方就有茶餐厅,由于其方便快捷的服务以及多种多样的食肆总类而广受欢迎,成为人们生活中不可缺少的一部分,茶餐厅在香港已经是市井的代名词。

茶餐厅文化起源可追溯至战后港英政府时期。早年香港只有高级的餐厅才会提供西式食物,收费昂贵。香港人受西式饮食风俗影响日甚,冰室开始提供廉价的仿西式食物。冰室当时主要提供咖啡,奶茶,红豆冰,三明治,吐司等,部分设有面包工厂,生产凤梨包,蛋挞等。冰室提供的食品种类逐渐增加,开始结合西餐厅的模式,演变成今天的茶餐厅,提供简易中国菜及欧美食物,较大规模的会供应晚饭小菜。

中西特色兼收并蓄的食品以及服务,在港人的追捧和本地文化影响下,越来越有了香港本土特色。装修环境亦是中西合璧。马赛克瓷砖,高高的木质卡座,以及墙上琳琅满目的菜单。与香港繁华的街景交相呼应。

回顾香港的历史是多元文化的交融,过去殖民地的背景下,受中西方双重文化的影响。这种交迭的文化也是本餐厅创意灵感的来源。

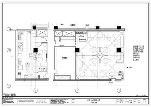
本项目设计师想摆脱人们心中茶餐厅固有的形象,以英式建筑十字拱顶的方式分割餐厅正方形的用餐空间。在平面上分成四部分,设计为四个拱结构,将拱结构的面去掉,简化为结构线,减轻了拱形天花的重量感。运用圆铜管做结构线,每个结构在四个角落下来,四个拱形结构结合,交汇到中心,有趣的线型竟成为了英国米字旗至的分割。

结合空间结构,来进行平面上的布置,中间为视觉重心。放了四组稍有重量感的圆形卡座。整个布局接近对称,入口一侧为收银台,斜对角为水吧台。
整体空间以白色,水磨石与铜三个材质为主要色调。简洁的白色衬托铜管的造型结构,水磨石材质由地面延到墙面腰线。入口处两侧向里卷曲的弧形水磨石,仿佛伸开双手欢迎顾客。收银台和吧台为两个铜盒子,与拱形一致的弧度开洞,半透的铜网吊架,吊架内隐约透出的餐具摆放。为了使空间更纯粹简洁,除了拱形结构穿下来的球型灯罩与墙壁上的铜制壁灯点缀之外没有其它装饰吊灯。
设计团队利用极简手法来表达英式建筑十字拱顶结构,四个十字拱凑成了英国米字旗,这个意外是对香港茶餐厅的起源与当年那段殖民历史的一丝回顾。









