
随着国民经济发展我国用电需求增长迅速,城市为满足输电、变电和配电需求建设了大量的变电站。城市中的新增变电站在一定程度上都面临缺乏混合利用开发强度低、邻避效应明显、自我封闭与城市环境不协调的问题。本项目尝试通过促进政府部门、投资方、建设方和使用者之间的交流,提出整体问题解决方案。

_%E6%9D%A5%E6%BA%90httpwww.365zhanlan.com.jpg?1482994696)





中心旧城区燃煤小锅炉排放不达标是北京雾霾产生的一个重要因素。北京市发改委和环保局为此推行“煤改电”计划,菜市口220 KV变电站及附属设施为市“煤改电”的重点工程。建设地点位于北京市西城区,北侧紧邻区历史文物中山会馆,东侧与胡同民居相连。规划部门要求建设220KV输变电站并和城市风貌相协调;周边居民不希望建设有围墙的地上变电站;而建设方对需要花费数倍于地上变电站的地下做法并不积极,同时要求建立80m高超大体量地上建筑获取利益。在民众诉求、政府意志和企业利益之间,该项目反复几次后一度陷入僵局。



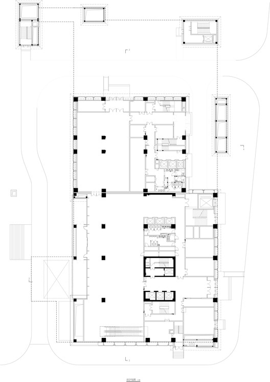
设计团队以策划介入,通过多方多次协调重写设计任务书:规划控制建筑高度60m,北侧30m范围内为文保建控区,建构筑物控高5 m。项目包括220KV变电站主厂房及电力科技馆两部分内容。其中地下三至五层为变电站主厂房,是世界首座可参观的地下220KV智能变电站。地下二层以上为具有商业价值的附属设施(电力科技馆及电力客服中心办公用房)。



总图设计在北侧退让出30m范围的建控区,以园林景观设计营造出贴近文物建筑的高品质城市空间。建筑形体分为高度不同的若干小体块:12层主体建筑布置在用地南侧,和现状沿菜市口大街周边60m高的建筑群基本保持一致;北侧布置多层裙房,形成空间梯度高度递减至建控区。此举消解对城市历史街区的视觉压迫,同时形成丰富的建筑表情。建筑表皮设计着力于体现建筑与城市历史和文脉发展的关系,以超白玻璃反射天光云影和胡同院落,以传统纹样开洞的石材幕墙表皮暗合中国神韵。




北京菜市口220 KV变电站及附属设施是在新型城镇化背景下将电力设施、教育功能、公众服务等融为市政综合体的一次探索。通过创新式的混合利用提升建筑价值、协调城市环境、营造城市开放空间,并促进北京空气质量的改善。尝试通过前期建筑策划引导多方在相互搭接的平台上共同商讨,以整体解决方案应对日益复杂的城市建筑项目。
.jpg?1482813052)







.jpg?1482813052)







