
•
Gwangju, 韩国
-
建筑师: 履露斋
- 面积: 2647 m²
- 项目年份: 2009
-
摄影师:Jong Oh Kim

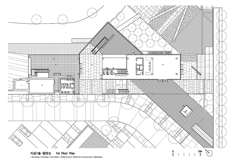
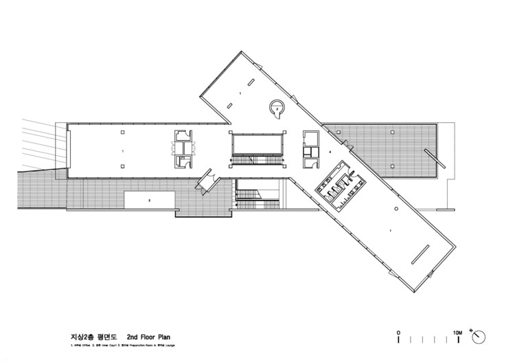
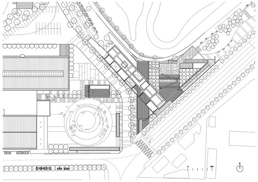
光州双年展服务中心位于光州双年展(GB)区域和邻近的Yongbongje交界处。GB周边地区本应令人联想到传统景致,但事实却并非如此。高层公寓大楼和散乱的购物中心无不提醒着人们快速的城市建设已经使这一片市郊区域失去了它原本的色彩。因此,建筑师的首要任务就是建造属于GB所独有的文化景致。同时,广场院落(Gwangjang Yard)作为一年一度的传统文化活动的举办地,是游客与创作者们聚散的地点,其空间重要性不言而喻,承载了公众的共同回忆。该空间对GB来说是极富象征意义的场所,为了赋予它以鲜明的特征, 该结构被建造为背景。因此,建筑师构建了拉长的墙壁。

GB 和 Yongbongje 代表了文化之重和天然之美。它们之间是城市与自然的关系。墙体划分了两个地区,在区分功能单元的同时又将各自空间连接起来。透过一层开放空间观赏到的景致就如同相框中的图片,美不胜收。两个区域互相对话,令人印象深刻。

墙体朝西,阻隔了西侧太阳光线进入室内。黄昏将至时,棕色的混凝土墙在阳光的照射下变成深棕色且熠熠生辉。如同阳光在泥土墙上浮动,摇曳生姿 ;墙体也使关于双年展院落的所有活动和生活记忆生动而鲜活。

墙体的内部是一个小型的城市结构。居民们作为小型社区的成员,在小院、巷弄和小公园里聚散。朝向GB 的风景受到一定限制,但朝向Yongbongje 的景致则无限扩展延伸。两者之间的角度使两个区域间实现了制衡,并创造了戏剧化的内部空间。

最后,这些都是棕色墙体创造的景致。作为文化墙体,它蕴含了所有为墙体的建造而努力的人们的共同回忆。因此,该结构或许可以被称为“回忆之墙”。

























