
-
建筑师: 如莫空间设计
- 面积: 309 m²
- 项目年份: 2025 年
-
摄影师:Wen Studio
-
厂家: Hafele

餐厅“Aster”之名源自希腊语“星”,其星形花序与独特紫色调赋予空间高贵优雅的气质。设计以“中心—放射—层叠”为手法,将几何逻辑转化为可感知的空间氛围,营造在花心相聚、于星光下用餐的沉浸体验。


英籍主厨 Joshua Paris 拥有 19 年烹饪经验,曾与 Richard Ekkebus、Paul Pairet 等名厨共事,深受“极致、精准、无妥协”料理哲学影响。他坚持不断追问“为什么”,将每道菜打磨至无可改进,这一精神亦是 Aster 的灵魂。


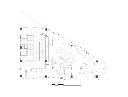
空间以五个模型展开:
1.花心
中央环形吧台与开放式厨房构成“前台—后厨—观演”一体化系统。吧台既是社交中枢也是出品舞台,环绕式席位让宾客近距离参与烹饪过程。吧体下沿弧形灯带如花蕊微亮,与顶部装置及夹层艺术玻璃窗形成内外呼应的光场。吧台及厨房基座采用手工塑形“岩面”肌理,以可触摸的质感呼应“根性”与时间沉淀。


2.花冠
顶部装置由 39 片可旋转模块单元构成,每片以 15° 旋转形成螺旋放射结构。单元承载晕染宣纸叶片,呈现半透明紫色层次。夜间周边射灯由外向内扫掠,侧光勾勒叶缘,背光照亮纤维,将花冠渲染为漂浮星云。模块化设计兼顾维护便捷与可持续更新。


3.花序
沿窗吊灯以混凝土梁为基准对应排列,形成向外延展的光序。环片与垂片叠加的灯具形态通过高度微差营造节奏变化,底部同轴嵌入下照单元,兼顾氛围营造与桌面功能照明。


4.花萼与根
结构混凝土与橡木、石材并置,形成粗粝与温润的对话。人字拼橡木地板如根系向外延展。吧台及基座采用手工“岩面”黏土,以触觉叙事呼应“头顶之花自泥土而生”。圆角家具软化边界,让身体在木石间感受温暖包容。

5. 星座|VIP
夹层以偏轴布局营造安定感,胡桃木与绒面铺陈休息区。古铜色镜面顶棚拉伸垂直感,抽象叶片图案兼顾结构逻辑与视觉秩序。包间内“星尘”装置以烟紫叶片串联成星群,微偏中心的设计将焦点留给餐桌交流。材质由硬转软,石与木逐步过渡为织物与软包,温柔承接身体的每一处接触。


















