
-
建筑师: Arcane Architectes
- 面积: 2114 m²
- 项目年份: 2023 年

位于蓬德克莱克斯(Pont-de-Claix)的新科学中心 —— 宇宙科学中心(Cosmocité),是集建筑、科学与景观于一体的文化地标。该建筑被构想为一场探索之旅,游客可在此探索宇宙奥秘,同时重温场地历史,感受周边城市的独特韵味。


该项目根植于维朗库尔大磨坊(Grands Moulins de Villancourt)的记忆,这座工业综合体曾长期定义着当地的特色风貌。尽管出于功能性和安全考虑,原有建筑无法保留,但其标志性的轮廓仍为设计提供了灵感。新建筑通过两个截然不同的体量重新诠释了这段记忆:一个明亮洁白的棱柱体,专为通行与开放空间设计;一个深邃、如巨石般的建筑块,容纳着沉浸式科学空间。这种对比体现了遗产与当代创新、工业记忆与科学想象之间的对话。

设计宇宙科学中心需克服诸多重大挑战。在保留原有建筑象征意义的同时,决定拆除现有结构成为项目转折点,这要求在设计致敬与创新之间谨慎权衡。项目本身极为复杂,既要满足声学、投影和舞台布景的先进技术要求,又要确保公众通行路线清晰直观。在预算和可持续发展目标的限制下实现这一连贯性,要求建筑师、工程师和舞台设计师从项目伊始便紧密合作。

该建筑以紧凑高效为特点。其结构依靠钢筋混凝土确保稳定性和声学性能,并辅以钢结构支撑天文馆穹顶。建筑外立面采用黑色铝板、不锈钢和半透明聚碳酸酯板,形成重量与轻盈感的对话。高性能围护结构、卓越的气密性和节能型暖通空调系统确保了建筑的生物气候性能,其标准超越了法国法规要求。施工方法优先考虑耐久性、低影响材料和严格的废物管理协议,符合项目的环保目标。

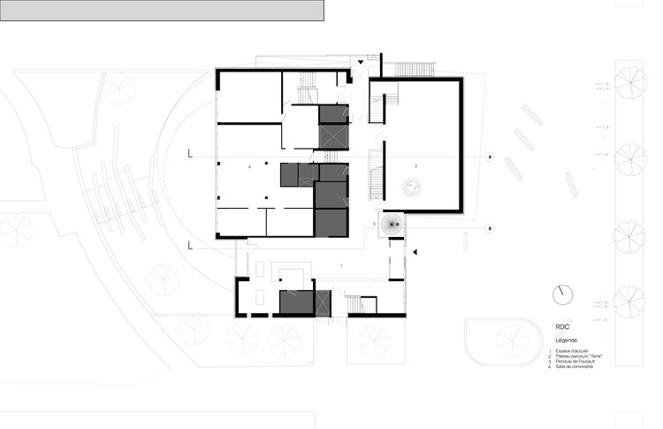
内部空间中,游客体验如叙事般从宇宙延伸至地球。一个拥有 84 个座位的天文馆、一个 3D 沉浸式影院,以及两个主题展厅 —— 地球与太空,营造出迥异氛围,将教育与惊叹之情融为一体。通行路线透明流畅,为游客打开一扇扇通往周边阿尔卑斯山景的取景框。标志性的科学元素,如贯穿中庭的傅科摆和地质岩芯样本,将科学牢牢锚定在空间体验的核心。教育工作室与公共大厅直接相连,而全景观景台则矗立于建筑之巅,向群山敞开怀抱。


宇宙科学中心不仅是一座科学设施,更是格勒诺布尔(Grenoble)都会区的城市灯塔。其建筑融合了清晰与情感、记忆与创新、环境责任与文化抱负。它不仅是一个观测宇宙的场所,更是一个邀请人们质疑、想象与梦想的地方。

































