
-
建筑师: Studio UF+O
- 面积: 7000 ft²
-
摄影师:Vivek Eadara

在印度各大城市的繁华商业街上,零售展厅常常竞相吸引顾客目光,它们以璀璨夺目的吊灯、广告牌和华丽的外观为武器。而位于维贾亚瓦达、占地 7000 平方英尺的某珠宝品牌总部 —— Fluted Volume,却采取了截然不同的姿态。这座建筑由 Studio Urban Form + Objects 工作室的维尼特·沃拉(Vineet Vora)和普拉奇·帕雷克(Prachi Parekh)设计,它以陶土色调的巨石之姿傲然挺立:在城市景观中,它既具雕塑感,又显低调内敛,同时悄然散发着权威气息。其建筑形态源于设计任务书核心处的一个悖论:如何打造一座既需引人注目、吸引人流,又能体现品牌特色的建筑。


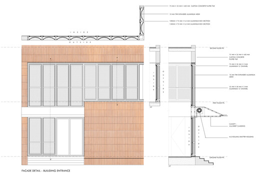
Studio UF+O 的解决方案是打造一面既非完全不透明、也非完全透明的立面,而是介于两者之间。经过严格原型测试,整个外部形态通过精确设计的开口引入自然光,并采用定制浇筑的陶瓷混凝土槽纹板进行包覆,表面为哑光陶土色。这些非正交模块以节奏性的重复排列,赋予建筑雕塑般的质感,打破了人们对珠宝店商业浮华感的预期。“打造一座彰显永恒与特色的建筑至关重要,”维尼特说道,“它不应只是一层光鲜的外壳,而应让人感觉它本就属于这座城市。”槽纹板上的光影交错为建筑表面赋予了动态质感,使其随日间时光流转而变换风貌,而开口则精心朝向北面和东面,既能引入光线,又避免室内受到眩光或高温侵扰。玻璃表面外覆有一层扩展的槽纹铝网外皮,既增添了不可穿透性,又控制了入射阳光。

内部空间布局上,展示区、流通区和收银台等人流密集的功能区位于底层,而随着楼层上升,则布置了更为私密的功能区,采用单色米色调,包括 VIP 休息室和工作空间。屋顶露台巧妙地隐藏了一座安全的黄金熔炼炉。平面布局既考虑了仪式感和人流走向,也兼顾了功能性。保险库和高安全区域被安置在建筑后部,而公共区域则占据前部。穿行于建筑之中,仿佛经历了一场精心编排的舞蹈,过渡空间经过精心校准,同时平衡了可见性、私密性和控制性。


自然光成为室内空间真正的主角。一个遵循风水原则设计的双层挑高空间,通过天窗将日光引入建筑深处,从而在视觉上打开内部空间。建筑南侧的楼梯由陶瓷玻璃砖支撑,光线经过折射和散射,与厚重单调的外部形态形成对比,营造出轻盈之感。“我们希望带来一些惊喜,”普拉奇指出,“一个让人意外感受到建筑精致之美的瞬间。”这一光芒四射的时刻,将原本可能因高度安全而显得沉闷的内部空间,转变为一个明亮振奋的环境。


外部的槽纹元素也延伸至室内,用于隔断、地板和展示背景,从而将品牌的建筑特色与其珠宝系列紧密相连。内外之间的一致性打破了建筑仅为容器的观念,转而提出一种连贯的空间语言,使建筑与品牌融为一体。



然而,Fluted Volume 不仅是设计的杰作,更是坚持的成果。该建筑三面环街,在施工期间完全暴露于公众视野之中,引来了熟人及路人的诸多非议,他们原本期待的是吊灯和闪亮的表面。这座安静、巨石般的建筑引发了质疑,甚至面临迎合当地期望的压力。“这个项目的独特之处在于,它抵御了外界的喧嚣、影响和稀释愿景的诱惑,”普拉奇回忆道。“最终,”维尼特补充道,“曾经对它持怀疑态度的城市,如今已将其视为己出,亲切地称之为‘红堡’。”


从这个意义上说,该项目的成就不仅在于调和了安全、可见性和功能性的竞争性需求。其更深层次的胜利在于它如何坚守自己的立场:一座拒绝成为奇观却彰显存在感的雕塑性地标,为印度珠宝零售业提供了一种全新的建筑语言。





























