主页

桑蒙塔洛学校及多功能中心 / NERVIN architecture

桑蒙塔洛学校及多功能中心 / NERVIN architecture - 2 的图像 30桑蒙塔洛学校及多功能中心 / NERVIN architecture - 建筑图桑蒙塔洛学校及多功能中心 / NERVIN architecture - 4 的图像 30桑蒙塔洛学校及多功能中心 / NERVIN architecture - 室内图, 木头, 门桑蒙塔洛学校及多功能中心 / NERVIN architecture - 更多图片+ 25

拉彭兰塔, 芬兰
  • 主创建筑师: Antti Soini, Leo Lindroos, Tuuli Kanerva
  • 设计团队: NERVIN architecture
  • 主承包商: SRV
  • 结构工程师: Sweco Finland
  • 暖通空调工程师与电气工程师: Granlund
  • 景观建筑师: Nomaji Maisema-arkkitehdit
  • 室内设计师: Sistem
  • 城市: 拉彭兰塔
  • 地区: 芬兰
展开收起
桑蒙塔洛学校及多功能中心 / NERVIN architecture - 2 的图像 30
© Rasmus Norlander

桑蒙塔洛是一座多功能社区建筑,它将日托中心、学前班、综合学校、公共图书馆、体育与青年活动设施以及学生福利服务汇聚于同一座连绵不断的瓦屋顶之下,打造出一个供日常生活共享的市民中心。该项目设计可容纳约 860 名儿童,并由超过 140 名专业人员提供支持,其实现基于一场开放式两阶段建筑竞赛的获胜提案。桑蒙塔洛建筑面积约达 12000 总平方米,是芬兰最大的木结构建筑之一。

桑蒙塔洛学校及多功能中心 / NERVIN architecture - 建筑图
© Rasmus Norlander
桑蒙塔洛学校及多功能中心 / NERVIN architecture - 建筑图
© Rasmus Norlander

该建筑位于拉彭兰塔市郊萨蒙拉赫蒂(Sammonlahti)区的中心地带,当地的主要市政建筑形成了一个协调统一的建筑群,于 20 世纪 80 年代末至 90 年代初竣工。这些市政地标包括由 Suunnittelurengas Oy 建筑公司的建筑师苏洛·萨沃莱宁(Sulo Savolainen)设计的商业中心和卫生站,以及由丽塔和卡里·奥亚拉(Riitta and Kari Ojala)设计的萨蒙拉赫蒂教堂。这些建筑反映了后现代主义风格,以红砖外墙和借鉴欧洲建筑传统为特点。

桑蒙塔洛学校及多功能中心 / NERVIN architecture - 22 的图像 30
轴测图

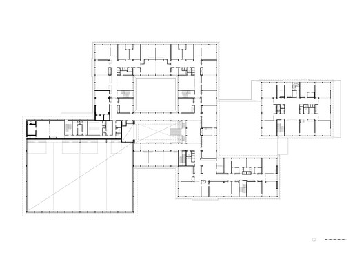
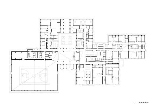
桑蒙塔洛的设计灵感源自这些红砖建筑遗产,旨在强化现有的公共建筑群,并完善萨蒙拉赫蒂中心的城市空间序列。该建筑几乎横跨整个地块,将区域划分为两种截然不同的氛围:北侧是更具都市气息的市民区域,南侧则是绿意盎然、宛如公园般的游乐场和运动场地。

桑蒙塔洛学校及多功能中心 / NERVIN architecture - 4 的图像 30
© Rasmus Norlander
桑蒙塔洛学校及多功能中心 / NERVIN architecture - 室内图, 木头
© Rasmus Norlander

桑蒙塔洛的主要空间序列,以位于城市一侧入口庭院与公园一侧内庭之间的建筑大堂为中心,形成了一条视觉通透、体验连贯的轴线贯穿整个建筑。明亮的内庭与红砖外墙形成鲜明对比,为室内带来充足的日光和开阔的视野。

桑蒙塔洛学校及多功能中心 / NERVIN architecture - 室内图, 木头, 门
© Rasmus Norlander
桑蒙塔洛学校及多功能中心 / NERVIN architecture - 室内图, 木头, 玻璃
© Rasmus Norlander

尽管规模庞大,但该建筑群被划分为多个更小、更符合人体尺度的单元,与周边建筑的比例自然协调。双层外墙强调水平线条:底层厚重的砖柱构成稳固的基座,而连续的带状窗户和纤细的柱梁结构则使上层显得轻盈通透,宛如亭阁。倾斜的砖瓦屋顶和连续的双层屋檐使建筑在城市景观中呈现出独特而统一的轮廓。

桑蒙塔洛学校及多功能中心 / NERVIN architecture - 23 的图像 30
一层平面图
桑蒙塔洛学校及多功能中心 / NERVIN architecture - 30 的图像 30
轴测图及剖面图

该建筑以 3.5 米的结构网格进行布局,这一设计在整体建筑中得到了始终如一的体现。建筑被构思为一个协调统一的整体,依赖于一套最小化的、可重复且结构清晰的元素。木制柱梁系统向上逐渐变细,显得轻盈,内外皆可见,而砖砌外墙则作为木结构的保护“雨衣”。

桑蒙塔洛学校及多功能中心 / NERVIN architecture - 16 的图像 30
Courtesy of NERVIN Architecture
桑蒙塔洛学校及多功能中心 / NERVIN architecture - 10 的图像 30
© Rasmus Norlander

桑蒙塔洛的材质调色板主要融合了两种色调:砖红色和天然木色。砖红色定义了公共区域,如大堂、图书馆和走廊,赋予它们温暖和特色,而浅木色则主导了更为宁静的学习空间。色彩方案从外到内无缝延续,大量使用木材  —— 其中许多被染成半透明红色 —— 营造出统一而宜人的氛围。这些元素共同赋予了桑蒙塔洛鲜明的建筑特色,以及形式、材质与场所之间永恒的和谐感。

桑蒙塔洛学校及多功能中心 / NERVIN architecture - 建筑图
© Rasmus Norlander

项目图库

查看全部显示较少
关于这家事务所
引用: "桑蒙塔洛学校及多功能中心 / NERVIN architecture" [Sammontalo - School and Multipurpose Center / NERVIN architecture] 26 11月 2025. ArchDaily. Accesed . <https://www.archdaily.cn/cn/1036105/sang-meng-ta-luo-xue-xiao-ji-duo-gong-neng-zhong-xin-nervin-architecture>

您已开始关注第一个帐户了!

你知道吗?

您现在将根据您所关注的内容收到更新!个性化您的 stream 并开始关注您最喜欢的作者,办公室和用户.