主页

遥望总部大楼 / gad

遥望总部大楼 / gad - 建筑图, 玻璃遥望总部大楼 / gad - 建筑图, 玻璃遥望总部大楼 / gad - 4 的图像 24遥望总部大楼 / gad - 5 的图像 24遥望总部大楼 / gad - 更多图片+ 19

杭州, 中国
  • 建筑师: gad 杰地设计
  • 面积 该建筑项目的领域 面积:  41862
  • 项目年份 该建筑项目的竣工年份 项目年份:  2024 年
  • 摄影师
  • 厂家 该项目中使用产品的品牌
    厂家:  旗滨, 鑫美
  • Lei Bie: 办公设施
  • 主创建筑师: 张微
  • 设计团队: 张微,陈钢,毛亮,许翔,宋春亚
  • 景观设计: 杭州建筑设计研究院
  • 室内设计: 申江海工作室
  • 照明设计: 杭州建筑设计研究院
  • 幕墙设计: gad 杰地设计
  • 机电设计: gad 杰地设计
  • 技术支持: (结构)章钢雷/郭俊峰 (设备)刘荣/潘小艳/王跃/陈德闯/傅旭辉/洪理靖/洪至彦 (幕墙)夏冯慧/刘乾龙/陈常青/赵磊/胡嘉媛
  • 城市: 杭州
  • 地区: 中国
展开收起
遥望总部大楼 / gad - 建筑图, 玻璃
© 直角建筑摄影

遥望总部大楼位于杭州市未来科技城联创街与海园路交汇处,总建筑面积约 42000㎡。基于企业“科技驱动的新消费服务平台”的定位,我们试图通过建筑空间、形式、功能的整合,让建筑成为城市景观的一部分,助力企业激发灵感、孕育创意。

遥望总部大楼 / gad - 建筑图, 城市
© 直角建筑摄影
遥望总部大楼 / gad - 建筑图
© 直角建筑摄影

用地周边建筑环境复杂,高低参差、界面多样。在建筑限高 45m 的条件限制下,建筑设计以钻石般的多面体形态,成为区域内特别而不张扬的存在。

遥望总部大楼 / gad - 建筑图, 玻璃
© 直角建筑摄影
遥望总部大楼 / gad - 建筑图, 玻璃
© 直角建筑摄影

建筑北侧通过边界退让与体量倾斜出挑的方式,形成最大尺度的主入口广场。南侧作为次要入口,在有限用地内通过下沉庭院、首层花园的设计,营造办公场所的独立小公园。

遥望总部大楼 / gad - 建筑图, 玻璃
© 直角建筑摄影
遥望总部大楼 / gad - 9 的图像 24
© 直角建筑摄影

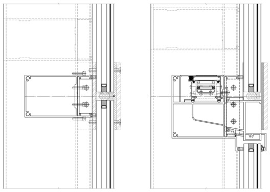
建筑立面用阳极氧化铝板表达结构骨架。幕墙设计中,通过定制菱形夹具固定玻璃的方式实现隐框效果,渐变肌理让连续的大面积玻璃产生有节奏的变化。隐藏式通风器解决无开启扇下的空气流通问题,以保证立面的平滑和纯净。建筑充满未来感的形式回应了科技企业的先锋性,让建筑在环境中“独树一帜”。

遥望总部大楼 / gad - 建筑图
© 直角建筑摄影
遥望总部大楼 / gad - 建筑图
© 直角建筑摄影

关于内部空间的设计,我们以南北贯通且局部通高的中庭贯通首层南北主次入口,并组织内部功能。中庭中交错的连廊,不仅是丰富路径体验的交通空间,也是建筑整体结构的一部分,同时为公司直播业务提供多样的直播空间场景。此外,我们在有限的建筑体量内创造出商业、餐饮、办公、接待、展示、会所、观景等不同尺度、开合、体验的丰富空间与使用场景。

遥望总部大楼 / gad - 5 的图像 24
© 直角建筑摄影

遥望总部的设计,是我们对城市、自然、建筑、使用者多维考量下的空间实践,也是我们对遥望企业精神的建筑表达。

遥望总部大楼 / gad - 建筑图, 玻璃
© 直角建筑摄影
遥望总部大楼 / gad - 建筑图, 玻璃
© 直角建筑摄影

项目图库

查看全部显示较少
关于这家事务所
引用: "遥望总部大楼 / gad" [Yowant Headquarters Building / gad] 10 11月 2025. ArchDaily. Accesed . <https://www.archdaily.cn/cn/1035870/yao-wang-zong-bu-da-lou-gad>

您已开始关注第一个帐户了!

你知道吗?

您现在将根据您所关注的内容收到更新!个性化您的 stream 并开始关注您最喜欢的作者,办公室和用户.