主页

四川天府新区麓湖幼儿园(北区) / 天仝建筑

四川天府新区麓湖幼儿园(北区) / 天仝建筑 - 2 的图像 38四川天府新区麓湖幼儿园(北区) / 天仝建筑 - 3 的图像 38四川天府新区麓湖幼儿园(北区) / 天仝建筑 - 4 的图像 38四川天府新区麓湖幼儿园(北区) / 天仝建筑 - 室内图, 木头, 灯四川天府新区麓湖幼儿园(北区) / 天仝建筑 - 更多图片+ 33

成都, 中国
  • 建筑师: 天仝建筑
  • 面积 该建筑项目的领域 面积:  8300
  • 项目年份 该建筑项目的竣工年份 项目年份:  2024
  • 摄影师
  • 厂家 该项目中使用产品的品牌
    厂家:  Forbo linen flooring, Marco polo, Nippon Paint, Van der Rohe Furniture
  • 主创设计师: 王翔、田文沐
  • 设计团队: 邵薇,齐然,李倩,朱文涛
  • 委托方: 成都万象蒙泰教育管理集团有限公司,成都万华投资集团有限公司装饰中心
  • 城市: 成都
  • 地区: 中国
展开收起
四川天府新区麓湖幼儿园(北区) / 天仝建筑 - 2 的图像 38
© MMCM Studio

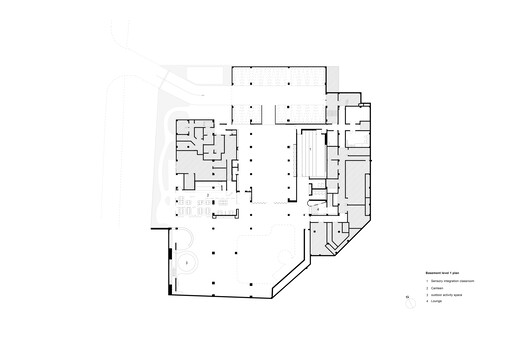
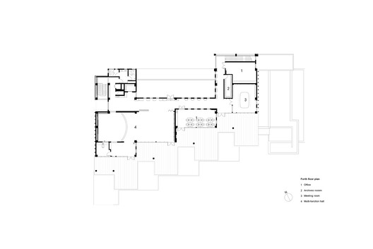
麓北幼儿园位于麓湖社区西侧,是该片区首所公立幼儿园。建筑设计采用层叠退台策略,在统一教学单元进深的基础上,为低楼层创造更多室内公共空间。大尺度布局不仅满足幼儿感统训练需求,更通过空间层级划分传递"公共-团体-个体"的渐进式教育理念。

四川天府新区麓湖幼儿园(北区) / 天仝建筑 - 室内图, 木头, 灯
© MMCM Studio
四川天府新区麓湖幼儿园(北区) / 天仝建筑 - 4 的图像 38
© MMCM Studio

设计以建筑思维重塑室内空间,反复推敲比例与流线后植入SAFF系统(小尺度、可进入、功能性家具)。这些微型"家具建筑"兼具储物、游戏功能,通过阵列排布形成视觉通廊与空间连接,构建微观城市图景。吊顶设计中,蓝色主调象征天空,木质局部吊顶模拟城市屋檐,强化空间界定。

四川天府新区麓湖幼儿园(北区) / 天仝建筑 - 室内图, 木头, 灯
© MMCM Studio
四川天府新区麓湖幼儿园(北区) / 天仝建筑 - 室内图, 餐厅, 木头, 椅子
© MMCM Studio

空间序列模拟城市生活场景:从开阔的"城市广场"延伸至下沉休憩区、低矮游戏区及教学单元入口。特别强化常被忽视的入口空间,通过尺度变化帮助儿童认知团体概念。

四川天府新区麓湖幼儿园(北区) / 天仝建筑 - 室内图, 木头
© MMCM Studio
四川天府新区麓湖幼儿园(北区) / 天仝建筑 - 9 的图像 38
© MMCM Studio

整体设计以儿童视角构建平行世界——1.2米视高的小尺度家具、低矮圆窗观察孔、模拟街巷的布局,在成人监护框架下形成专属儿童的社交场域。

四川天府新区麓湖幼儿园(北区) / 天仝建筑 - 室内图, 木头
© MMCM Studio
四川天府新区麓湖幼儿园(北区) / 天仝建筑 - 11 的图像 38
© MMCM Studio

该项目通过建筑化室内设计,将城市空间逻辑转译为教育载体,使儿童在日常互动中自然感知集体秩序,建立个体与群体的空间认知。

四川天府新区麓湖幼儿园(北区) / 天仝建筑 - 室内图, 餐厅, 椅子
© MMCM Studio
四川天府新区麓湖幼儿园(北区) / 天仝建筑 - 室内图, 木头, 灯
© MMCM Studio

项目图库

查看全部显示较少
关于这家事务所
引用: "四川天府新区麓湖幼儿园(北区) / 天仝建筑" [Sichuan Tianfu New District Luxelakes Kindergarten (North) / TEKTONN ARCHITECTS] 14 5月 2025. ArchDaily. Accesed . <https://www.archdaily.cn/cn/1030045/si-chuan-tian-fu-xin-qu-lu-hu-you-er-yuan-bei-qu-tian-tong-jian-zhu>

您已开始关注第一个帐户了!

你知道吗?

您现在将根据您所关注的内容收到更新!个性化您的 stream 并开始关注您最喜欢的作者,办公室和用户.