
•
东京, 日本
-
建筑师: KOMINORU Design
- 面积: 60 m²
- 项目年份: 2024 年
-
摄影师:Katsumasa Tanaka
-
厂家: Muku-Flooring

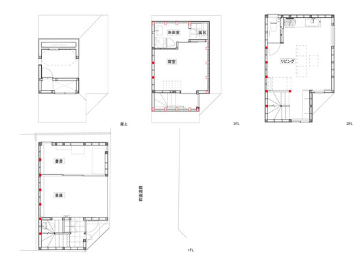
这是一栋三层木制房屋,建在只有 9 坪(约 30 平方米)的有限土地上。 由于它位于一个角落,如果满足耐火性能,建筑覆盖率可以达到 80%,我们能够获得比预期更多的建筑面积。




在半防火区域,我们选择了一座半防火建筑,该建筑在 2019 年修订的《建筑标准法》中引入,而不是半防火建筑。 通过将一些柱子和横梁做成 120 厘米宽或更宽,我们能够在确保防火性的同时部分暴露木结构。 因此,我们通过将天花板放置在横梁上,使其高度更高,尽管坡度很陡,我们仍然能够确保必要的占地面积。




至于形状,我们可以通过使用南侧道路坡度的天空曝光率来创建一个小的屋顶露台。 由于北侧的形状是由 1:1.25 的坡度决定的,因此关键是如何充分利用斜坡墙。

经过深思熟虑,我们决定将浴室放在三楼的北侧,因为浴室使用相对较少,而且有大量的储物空间。 倾斜区域将用于存储。 浴室的设计尽可能地简单,浴缸被塞进倾斜的墙壁之间的空间,从两个方向靠近。

我们利用长长的垂直空间,在屋顶上安装了一个通风窗,让整个建筑像风塔一样利用重力通风,创造了一个可以随时感受到微风的房子。 我们在屋檐上种了树,并将地面花园(由于其面积的原因,很难做到)提升到二楼,让您可以在室内享受少量的绿色植物。















