
-
建筑师: KAAN Architecten
- 面积: 12246 m²
- 项目年份: 2024 年

来自建筑师。KAAN Architecten 揭晓格罗宁根大学教育中心:一座创新枢纽与学习天地。KAAN Architecten 已完成格罗宁根大学教育中心(Anda Kerkhoven Centre)的设计建造。这座占地 12000 平方米的建筑,将成为健康老龄化校区(Healthy Ageing Campus)的新心脏与主入口。其设计旨在支持学习、促进健康并推动社交互动。建筑本身便是对这些理念的诠释,打造出一个以用户福祉为先的空间。



格罗宁根是荷兰北部最大的城市,拥有超过 60,000 名学生。健康老龄化校区坐落于历史城区之外,毗邻格罗宁根大学医学中心(UMCG),汇聚了来自医学院的学生与研究人员。KAAN Architecten 设计了健康老龄化校区一系列共享设施中的首个教育中心,旨在为校区内的诊所、研究与产业提供支持。该项目在 UMCG 北部区域大规模开发后,重新将校区与格罗宁根历史城区相连。通过拆除从市中心延伸而来的现有道路,该地块得以腾出。建筑坐落于这一轴线的中心位置,成为一座辨识度极高的地标,强化了校区与城市之间的联系。除在不同楼层融入庭院花园以及由 Felixx 景观建筑事务所(Felixx Landscape Architects)打造的高品质公共空间外,新教育中心还串联起 UMCG 的各项设施。同时,它通过将户外公共空间延伸至室内,丰富了校区北入口的景观,增强了各建筑之间的直接联系与流畅通行。


健康老龄化的核心在于营造一个促进健康的环境。教育中心的设计强调舒适度、自然采光与通风,以支持身体、心理与社会福祉。它鼓励学生走出课堂,与校区展开互动,提供各类协作、学习与放松的空间。从开放式小组工作站到私密性良好的独立区域,中心促进了学生、教职员工与访客之间的知识共享。其热情好客的外观与充满活力的项目规划,为校区注入了新的活力。

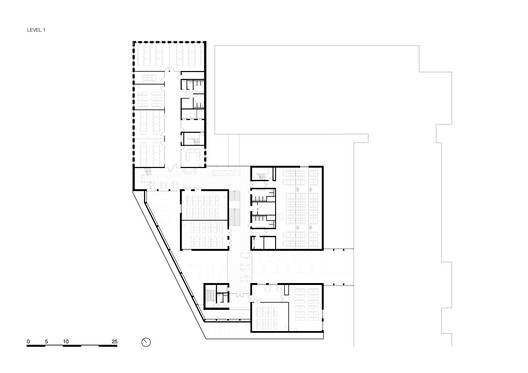
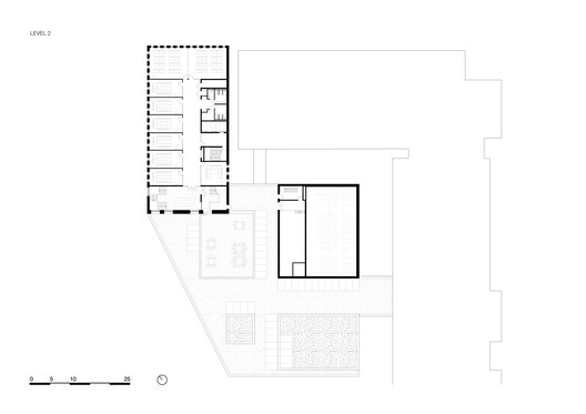
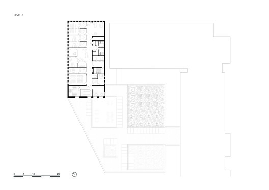
建筑设计包含五个独立体量。这些体量在地面与上层楼层中,与中央门厅在水平与垂直方向上无缝相连。这种布局促进了空间之间的连贯流动,提升了建筑内的可达性与互动性。体量的位置根据关键视线与建筑群期望的空间品质而定。水平门厅本身由面向公共广场、主入口与多个绿色庭院的透明立面所框定。庭院标志着向不同楼层现有建筑的过渡,并为较低楼层引入自然光线。水平门厅始终提供室外与其他建筑的视野,让用户自然地理解建筑群的布局。它围绕砖砌体量——“研讨厅”——进行组织,内部设有美食广场、礼堂、讲堂、项目空间、会议室以及一个独立的商业区域。垂直门厅将“研讨厅”与“学习塔”相连,后者内设教室、计算机房与技能实验室。宽敞舒适的楼梯与学习空间相结合,成为每层公共空间的延续。为鼓励使用楼梯以助力健康老龄化,电梯仅在奇数楼层停靠,要求用户上下一层楼梯。塔楼砖砌立面上的大型深窗,呈现出开洞的韵律感,并提供了多样化的宜人视野,可俯瞰市中心。最后,建筑宜人且易于抵达的绿色屋顶露台,强化了校区的绿色核心。



项目规划合理有序,具备足够的灵活性,便于未来对空间布局进行轻松调整。三个讲堂中的两个采用平台设计,而非固定座椅,可适应多种教学场景。塔楼采用标准化网格设计,技术设施网格更细密,结构跨度更大,也为多样化的空间布局提供了可能。

便捷的可达性、高舒适度、充足的自然采光与绿色视野,共同营造了一个健康且可持续的环境。此外,建筑全生命周期内均采用了一系列对环境影响较低的可持续材料。这些天然材料因其随时间变化而优雅老化的特性而被选用。建筑内外墙面均采用区域采购的砖石装饰。选用的浅色砂岩砖色,有助于营造温馨的氛围。室内门与窗框采用实心橡木制作,门厅的地面与墙面采用混凝土材质。砖墙与光滑而富有质感的清水混凝土相结合,界定了空间,赋予其坚固的城市气息,同时仍保持着友好的室内环境。水平门厅拥有高挑的天花板与透过金属网可见的屋顶结构,上方天窗与立面玻璃透入的柔和日光,为其增添了明亮感。与门厅形成对比的是,教学空间采用木质装饰,营造出轻盈自然的氛围。

“新 Anda Kerkhoven 教育中心将为校区这一区域注入新的活力,同时连接并强化周边建筑,一个新的公共空间应运而生,”KAAN Architecten 创始合伙人 Vincent Panhuysen 总结道。
































