

“更宽、更高、更便宜”——“更宽、更高、更便宜”并不是一个新兴趋势。在建筑领域,房地产作为资产的价值与建筑的关系密不可分,因此找到建筑与土地面积比和容积率的最大化也至关重要。2016 年威尼斯双年展韩国馆的主题是“容积率游戏”,探讨了过去 50 年来韩国建筑师为实现最大容积率所做的努力。当时,低利率和相对较高的土地价格,使得建筑所有者通过以土地为担保的贷款支付建设成本的压力减轻,这也促进了多户住宅市场的增长。在这一趋势下,许多建筑师尝试了多种方法论,例如“容积率游戏”。

“但,美丽”——2024 年即将结束,情况已经发生了变化。受新冠疫情的长期影响以及全球战争的冲击,利率上升、贷款变得困难,同时建筑成本显著增加。另一方面,由于产业结构和代际更迭的变化,建筑现场面临技术工人老龄化的问题,导致难以实现质量标准的统一。在这些不断变化的环境下,需要提出解决方案并关注如何最大化建筑量、最小化成本并提高施工可行性。尽管如此,无论是对业主还是建筑师而言,美学依然是不可忽视的重要议题。

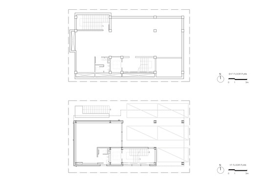
“额外的游戏”——原先一座三角形金字塔形的建筑因道路斜线限制和为保障采光权的北向斜线限制而占据了这片土地。2015 年,道路斜线限制被废除,而北向斜线限制的高度最近从 9 米放宽至 10 米。这一变化使得现有土地能够增加最大建筑体量,一些因道路斜线限制而造成的不便倾斜墙空间得以通过调整建筑覆盖率和容积率,改为更为垂直的形式。

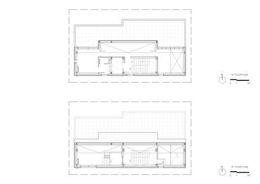
就像“容积率游戏”的口号一样,这座建筑的形态被扩展至土地的最大体量。一层在满足停车位数量的前提下被设计为室内空间,建筑垂直延伸至三层。从四层开始,由于采光权的斜线限制,增加了露台和倾斜屋顶。为尽量降低成本,现有的核心部分、西侧和南侧尽可能保留,而东侧和北侧则被拆除,用新的钢结构来获得额外空间。此外,通过利用不计入总建筑面积的1米深挑檐,每层都获得了一个露台。为了确保建筑覆盖率和容积率的最大化,这是一场激烈的“额外的游戏”。



“减法游戏”——与此同时,建筑形态也进行了一场“减法游戏”,通过使用最少的元素和现成产品来简化设计和施工。外墙采用了半导体可燃聚氨酯板(即“夹心板”)作为预制施工方法的一部分,不仅满足了保温标准,还尽可能减少了施工工作量。露台则使用了基座结构以简化施工和排水处理;倾斜屋面仅在防水层上覆盖了一层波纹钢板,既便于维护,又符合预制施工的特点。雨水管采用了裸露设计,使用现成产品,既方便维修,又与整体设计风格协调一致。

根据业主希望外立面呈现裸露混凝土质感的意见,项目采用了外墙保温系统,在夹心板表面精心涂抹了一层类似瓷器釉面的混凝土。窗户的设计则被尽量简化,仅保留满足采光、通风和消防通道需求的最小开窗面积,同时优先考虑减少对相邻地块邻里的干扰。

“彩蛋”——设计的初衷是让钢结构建筑看起来像混凝土建筑,但钢结构的真实特质却在一些细节中被巧妙地暴露出来。通过正面的窗户可以看到室内天花板的钢结构,而 H 型钢梁则隐约显现在柱廊立柱的缝隙中。这些设计为外立面增添了一丝幽默感,化解了整体可能显得生硬与沉闷的氛围。当然,这些细节更像是留给建筑师们的一些“彩蛋”,只有专业人士才能识别并欣赏其中的趣味。

“走钢丝”——改造项目的局限在于其施工范围受限,但建筑老化带来的变量却对项目规划产生重大影响。尤其对于较小的建筑,变量导致的成本增长更为显著,因此,翻新就像是在“走钢丝”。所幸,这个项目以相对较低的成本,将原有建筑改造成了一个实用且舒适的空间。在快速变化的时代和社会中,不存在完美的解决方案,但为业主和建筑师找到适合的解决之道却至关重要。



















