朱锫建筑事务所公布‘寿县文化艺术中心’设计方案
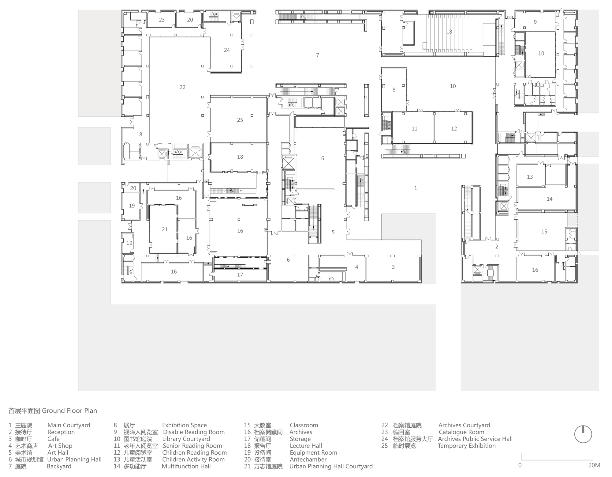
一层平面图
17
/ 21
...
收藏这幅画!
放大图像
|
原始尺寸
分享
分享
分享图片
Douban
Weibo
QQ
Wechat
或
复制 URL
收藏这幅画!
上一个项目
2020世博会卢森堡馆竞赛由 Metaform + The Space Factory 胜出
选定的项目
下一个项目
莫干山“裸心小馆” - 生态营造技术 / 晓辉设计工作室
选定的项目
✕
✕