
•
Yilian County, 台湾
- 面积: 800 m²
- 项目年份: 2016
-
摄影师:Chien-Jung Lo
本案基地位于宜兰县三星乡,一个以农业为主的乡村型态区域,建筑是置身于田野中的独栋别墅住宅,离台北约四十五分钟的车程。

宜兰就如同台北市的后花园,四周环山群抱,处处皆是绿意盎然的农田。

春夏秋冬四季交替的地景,因农业活动有著不一样的变化,朴隐居能够在这得天独厚的环境下,是一个非常好的开始。

朴实、平静、隐身自然为朴隐居的设计主轴,水平延展的T字型的建筑配置,营造出低楼层的视觉效果,更提供实用的空间配置。
大面积的水明带状开窗,将四季的面化地景带入空间中,营造出让人平静的室内空间。

黄金比例的建筑量体分割,室内与户外花园的呼应对照,让建筑物融入当地的地景当中,并仍具有其适当的自明性。

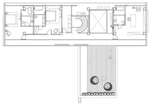
进入朴隐居,即是一面简洁明镜的长型水池,迎接引导,透过不同高低差的转换,进入室内空间;


开放式的玄关、客厅与餐厅,成就大方开阔的居家环境;

如同雕塑般的钢构双股螺旋梯,更是室内的焦点,也是作为连结一二楼空间的重要元素;

开放挑高的厨房与二楼的开放式的木质露台,提供居住者舒适的空间,让室内与室外的活动更紧密的连结,享受四季交迭的景致变化。











































