壹零城市事务所办公室 / LYCS Architecture
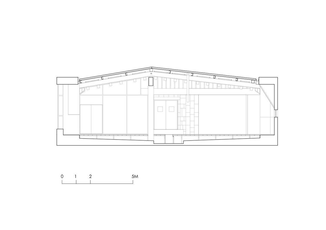
剖面
16
/ 16
...
收藏这幅画!
放大图像
|
原始尺寸
图纸
办公室室内
分享
分享
分享图片
Douban
Weibo
QQ
Wechat
或
复制 URL
收藏这幅画!
上一个项目
里昂会展中心 / Jean-Paul Viguier et Associes
选定的项目
下一个项目
BIT Bogstadveien / Scenario
选定的项目
✕
✕