
-
建筑师: Johanjun Architects
- 面积: 105 m²
- 项目年份: 2025
-
摄影师:Mongsang

位于城北路的城北洞,仍然保留着散布在该地区的老房子痕迹。在过去,文人和名流的家集中在昔日的城北川沿岸。虽然许多房屋已经消失,仅剩下遗址,但仍有一些保存至今。我认为,这里独特的城市景观——既有适度的繁华,又不失恰到好处的空旷,在首尔市中心的密集喧嚣中,依然保持着一种悠闲舒缓的节奏。

我们办公室搬到这个区域不久,一位客户就来拜访,想在我们新址附近的一块地皮上建一栋楼。那块地我午休时经常路过,它位于一个斜坡上,原先是一栋住宅(一层地下室,地上两层,可从路边进入),后来改建成了社区商业设施。


我们很高兴能在一个我们非常熟悉的场地进行施工,但同时,我们也因为施工过程中可能出现的潜在风险和民事纠纷而略感犹豫。最主要的担忧是建在斜坡场地后方石砌挡土墙上的现有结构的稳定性。

由于该建筑将建在城北路上的显眼位置,任何过往行人都能轻易看到,因此,即使在遵守法律限制的情况下,该商业租赁物业的立面也具有极强的可见性和吸引人的质感,这一点至关重要。

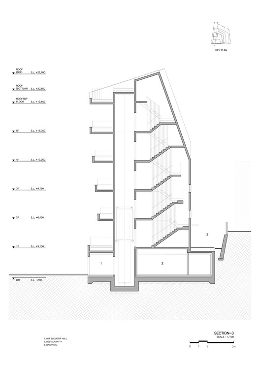
城北洞的地理条件也颇具挑战性。由于地处北汉山山麓,地基大多为基岩,因此建造地下室十分困难。然而,场地最大的优势在于可直接从公路进入,这是我们无法放弃的。为了营造出仿佛从基岩中拔地而起的巨大岩石雕刻而成的效果,我们决定采用裸露混凝土的质感,并在其表面蚀刻垂直图案。



场地北侧与地势较高的相邻地块接壤,受《朝北采光条例》(Jeongbuk Iljo)的限制,建筑高度受到限制。为了使从正面无法看到的必要退让距离能够从主干道上显现,我们采用了从三层开始建筑体量逐渐向前突出的设计。这种布局旨在从路边视角营造建筑立面的张力与动感。

为了弥补我心中的一点遗憾,我在这座建筑中巧妙地融入了一个隐藏的设计元素。之前的建筑里有一家名为“Yum Yum Burger”的手工汉堡店,我经常光顾,回家路上也会顺便买些汉堡。预感到新建筑建成后我可能无法再去这家店了,所以我在建筑设计中融入了几个叠放的汉堡面包的形状,以此来巧妙地唤起我对这家临时汉堡店的记忆。这是我现在才想起来的故事,我并没有告诉客户。我当时解释说,通过柔化建筑的边角,我实际上是在概念上将建筑的正面无缝地延伸到了侧面。



尽管施工过程中面临诸多挑战,但项目最终安全竣工,客户非常满意。我希望业主和使用者都能像我一样,对这座建筑充满热爱和自豪——这个项目始于2020年12月的会面和合同签订,并于2025年春季最终获得入住许可证。





























