主页

HEYDAY 社区中心 / ASWA

HEYDAY 社区中心 / ASWA - 2 的图像 27HEYDAY 社区中心 / ASWA - 室内图, 灯, 椅子, 玻璃HEYDAY 社区中心 / ASWA - 室内图, 玻璃, 钢, 梁HEYDAY 社区中心 / ASWA - 建筑图HEYDAY 社区中心 / ASWA - 更多图片+ 22

巴吞他尼府, 泰国
  • Lei Bie: 商业建筑
  • 主创建筑师: Phuttipan Aswakool, Chotiros Techamongklapiwat
  • 城市: 巴吞他尼府
  • 地区: 泰国
展开收起
HEYDAY 社区中心 / ASWA - 建筑图
© Soopakorn Srisakul

来自建筑师。HEYDAY 社区中心是泰国曼谷大学的一座全新社区活动枢纽。它将共享办公空间、美食广场及未来规划的餐厅集于一栋建筑之内,成为学生群体的最新热门去处。该建筑毗邻曼谷大学校园,坐落于一条长1公里街道两侧的方块式公寓楼之间。

HEYDAY 社区中心 / ASWA - 建筑图, 玻璃
© Soopakorn Srisakul
HEYDAY 社区中心 / ASWA - 2 的图像 27
© Soopakorn Srisakul

该建筑由三个带有弧形山墙屋顶的不对称体块构成,旨在打破周边方块式公寓楼的单调感。这种充满活力且独具特色的造型,意在吸引学生和教职员工,鼓励他们使用这个全新的社区中心。

HEYDAY 社区中心 / ASWA - 18 的图像 27
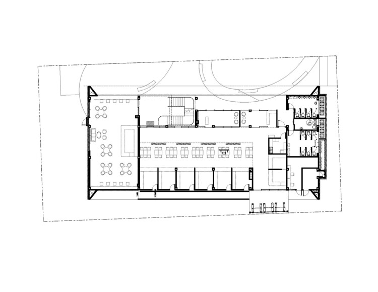
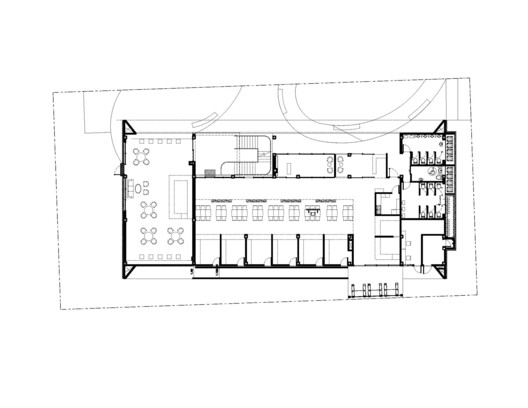
图纸
HEYDAY 社区中心 / ASWA - 25 的图像 27
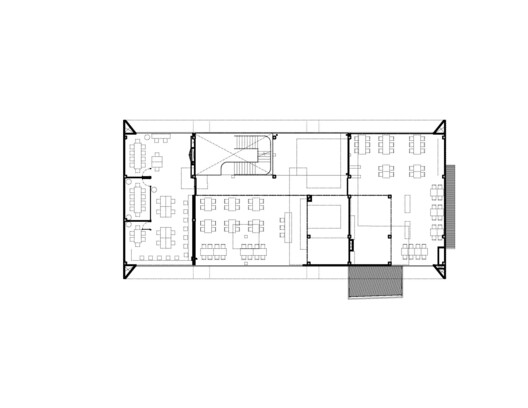
图纸

为促进校园与相邻公寓之间的连通性,已制定了便利通行的规划方案。这座两层的学生活动中心,首层设有美食广场和租赁空间。一条蓝色楼梯通向二层的共享办公区域,该区域一侧还设有一个夹层。

HEYDAY 社区中心 / ASWA - 室内图, 灯, 椅子, 玻璃
© Soopakorn Srisakul

该区域内部采用波浪形曲线设计,与整个空间中的各个体块相互呼应,延续了外部的造型设计。此外,二层还设有两处大型租赁空间,供未来餐厅或咖啡馆使用。

HEYDAY 社区中心 / ASWA - 室内图, 灯, 玻璃, 椅子, 钢, 梁
© Soopakorn Srisakul

HEYDAY 凭借其充满趣味与活力的建筑设计,旨在打造一个温馨愉悦的空间,让学生、教职员工和大学工作人员能够时常相聚于此,成为整个社区的公共活动区域。

HEYDAY 社区中心 / ASWA - 建筑图
© Soopakorn Srisakul

项目图库

查看全部显示较少
关于这家事务所
引用: "HEYDAY 社区中心 / ASWA" [HEYDAY Community Hub / ASWA] 17 10月 2025. ArchDaily. Accesed . <https://www.archdaily.cn/cn/1035020/heyday-she-qu-zhong-xin-aswa>

您已开始关注第一个帐户了!

你知道吗?

您现在将根据您所关注的内容收到更新!个性化您的 stream 并开始关注您最喜欢的作者,办公室和用户.