
-
建筑师: Park Associati, Snøhetta
- 面积: 27000 m²
- 项目年份: 2025 年
-
摄影师:Barbara Rossi

来自建筑师。Park 建筑事务所与 Snøhetta 建筑事务所携手合作,将位于米兰新门(Porta Nuova)区核心地段的 20 世纪 60 年代办公大楼 —— 倍耐力 35 号(Pirelli 35),改造成一座充满活力、易于通行且环境可持续的城市地标。该项目由 COIMA 公司委托,重新定义了建筑、景观与公共空间之间的关系,为城市更新打造了一个新的核心焦点。作为其战略意义和建筑价值的明证,倍耐力 35 号已被选为阿迪达斯(Adidas)和康泰纳仕(Condé Nast)的意大利总部所在地。倍耐力 35 号国际设计竞赛促成了一场意想不到却极具远见的合作。Park 和 Snøhetta 最初提出了两个截然不同却又相辅相成的方案,随后 COIMA 邀请两家事务所将各自专长融合为一个统一的项目。这一合作 —— Snøhetta 在意大利的首个项目,充分展现了建筑品质与可持续性如何在相互增益的合作中共存。



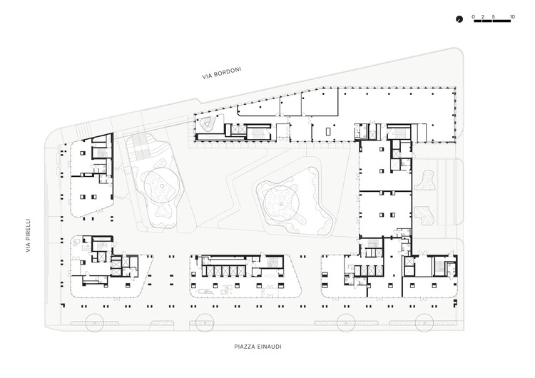
该项目并未选择拆除重建,而是采用了适应性再利用的潜力,保留现有建筑结构,以大幅减少隐含碳排放。建筑改造在提升建筑美学与结构品质的同时,还强化了其与米兰历史和现代风貌的联结。该项目最显著的特点之一,是将一座原本封闭、不透气的建筑,转变为一个开放、可自由通行的城市空间,重新缝合了城市的不同区域。该建筑原本是一个紧凑、自成一体的体量,如今通过拆除其中央翼楼,并引入一个悬浮于新公共庭院上方的体量,实现了重塑。这一改造打破了原有建筑的僵硬感,极大提升了通透性,使场地与周边环境无缝融合。

改造后的成果是一片与城市肌理交织的生机盎然的绿色空间,一个吸引人们相聚的场所,促进了租户与公众之间的互动,重新定义了建筑与城市的关系。新庭院铺设着如波浪般起伏的石质地毯,引导行人穿行其间,在米兰中央车站与新门区的当代花园 BAM 之间建立起直接而流畅的连接。大型落地窗为这一空间勾勒出精致的轮廓,增强了通透感,并强化了建筑内部与城市环境的对话。“当受托重新设计位于米兰市中心的倍耐力 35 号大楼时,我们非常欣喜能有机会打造一座回馈米兰市民的建筑。这完全契合 Snøhetta 自创立之初便秉持的理念 —— 我们深知,打破城市空间的割裂,让建筑内部向更广泛的公众开放,创造公众对这些建筑的归属感,并提升公共空间的可达性,是至关重要的。我认为,我们打造的这座建筑,正是欧洲城市乃至米兰再生建筑应有的典范,” Snøhetta 建筑事务所创始合伙人 Kjetil Trædal Thorsen 如此说道。



博尔多尼街(Via Bordoni)的立面,包括桥梁部分,采用了带有陶土色纹理涂料的金属覆层,与周边社区的住宅尺度相呼应。与此同时,重新覆层的原有建筑结构采用混凝土效果饰面,与新门区的现代高层建筑相协调,在历史与创新之间取得了平衡。Park 建筑事务所创始合伙人Michele Rossi 解释道:“这一改造是一次契机,展现了建筑如何能够连接过去与未来、记忆与创新。”“我们在现有建筑轮廓内进行改造,打造出一个全新的城市空间 —— 一个真正属于这座城市的场所。”

倍耐力 35 号大楼融入了前沿的可持续发展策略,为未来城市发展树立了标杆。该项目以低碳建设为优先,通过重复利用现有建筑结构,并全面采用回收材料。一座大型光伏顶棚为水-水热泵系统供电,优化了热能生产,同时智能建筑系统对能源效率进行监测与提升。通过将立面退至现有结构网格后方,设计还减少了太阳热增益,在确保通透性和自然采光的同时,提升了环境性能。倍耐力 35 号大楼不仅仅是一个工作场所,更是一个充满活力、包容开放、以人为本的空间,丰富了米兰的城市体验。该项目集办公空间、公共区域和生机勃勃的屋顶平台于一体,在米兰最具发展活力的区域之一催生了全天候的活力。倍耐力 35 号大楼见证了米兰的蜕变,在这里,历史记忆与当代创新交相辉映,共同重塑着这座城市的建筑与城市未来。




























