
-
建筑师: 本埠设计
- 面积: 2211 m²
- 项目年份: 2024 年
-
摄影师:Studio Millspace

公寓1号坐落于一个学区后方静谧的角落,正对着一座公园,两侧则与狭窄的小巷相连。该场地的条件颇具吸引力 —— 前方是开阔的绿地,两侧则是紧密排列的连排住宅 —— 形成了一种既亲密又界限分明的城市肌理。通过精心规划的归家空间序列以及共享阳台的布局,该项目旨在紧凑的城市环境中塑造一种友好邻里生活方式。



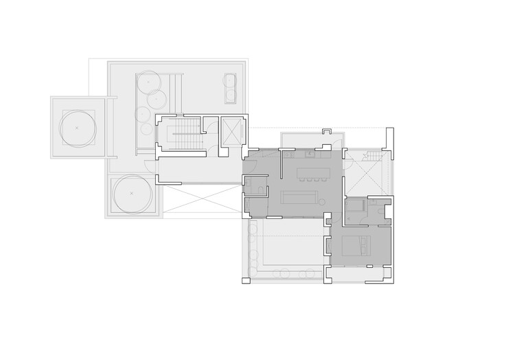
该建筑包含一层地下室和地上六层,由两个体量构成 —— 这是台湾南部城市常见的典型混合用途建筑类型。前部的单元是两层楼的商铺住宅,正对着街道和公园,而住宅入口则设在建筑后方,沿着一条较为安静的侧巷,这样的设计实现了商业区和住宅区的分离。

居民从侧巷进入一个经过景观设计的首层大堂。从那里,他们通过一个垂直交通核心 —— 被绿植环绕且朝向公园的楼梯井和电梯井 —— 上行至三楼及以上,那里是住宅单元所在之处。





为在紧凑的场地上实现空间利用效率最大化,地下室设置了一个带坡度的坡道用于停车。在地面层,建筑体量完全延伸至街道,同时从后方地界线稍作退让,与相邻建筑保持一定距离。在上方,两座住宅翼楼在垂直方向上呈交错布局。这种微妙的错位设计在各单元之间形成了一定程度的分隔,既保证了住户的隐私,又促进了邻里之间柔和的空间互动。


该设计区分了两种不同层级的“共享空间”。在社区层面,第一层级的共享空间始于通往大堂的绿色小巷,营造出一种温和且宜人的入口体验序列。在住宅层面,共享的楼梯大厅、阳台空间以及中间的绿化缓冲区域,则构成了邻里生活的垂直延伸。

成对的住宅单元之间的空隙处种植了树木,形成了一道天然的缓冲带。这些中间空间使得阳台和起居-用餐区域能够朝向楼梯井以及彼此敞开,从而在住宅与社区之间建立了一种既水平又垂直、既公共又私密的互动联系。


从三楼到六楼,每个单元都采用了独特的布局设计,而非基于标准化模板。共享的楼梯井位于单元中央,而私人房间则分布在每个单元的两端,或朝向街道,或朝向后巷,使得每户住宅都能以略有不同的方式与周边城市环境相融合。

住宅建筑体现了人们在城市中的生活方式。公寓楼作为一种集体居住形式,必须将个人的生活习惯转化为共享的空间体系。这一项目的设计灵感源自对小城生活的记忆 —— 那些质朴的街道、绿树成荫的庭院,以及由日常活动和邻里亲近所塑造的城市生活。嘉义市虽不大,却拥有独特的邻里尺度。










































