
-
建筑师: AaaM 建筑设计工作室
- 面积: 36000 m²
- 项目年份: 2023 年

杭州开物创新大厦 - 从新型办公综合体到共享融合的社交场所
杭州开物创新大厦位于古墩路与申花路交叉口,是杭州城西最后未开发土地之一,紧邻浙江大学紫金港校区东门主入口,靠近地铁 2 号线虾龙虶站,而周边多为传统的办公楼和住宅区。作为城西及浙大的地标门户建筑,项目综合了办公、零售、多层停车场、展览空间和广场等多个功能,旨在为周边企业、学术机构及社区提供一个全新的知识交流和互动平台。


业主构想设计两座办公塔楼,分别由合资的两个开发商拥有使用,并希望突破传统办公边界及单一功能框架,为办公租赁市场提供更多元化产品。同时因为其特殊位置,团队以打造大学区入口的城市地标为目标,使建筑功能满足周边居民和企业的多样化使用需求。


设计理念
透过设计条件、用户及场地分析,设计团队从研究学术、商业和社区领域的共生关系开始,探索一个知识交流、社区互动及企业展示的公共场所。在 60 米的建筑高度限制和有限的地块面积下,以“共享融合”为核心理念,通过打开建筑空间的中庭布局,不仅提供优质高效的工作空间,更希望促进目标客群,如大型企业总部、中型企业、科技初创公司及大学周边共享办公的各种合作与互动,务求成为一个共享共创共生的新型办公综合体。



建筑与空间描述
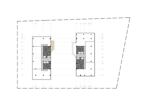
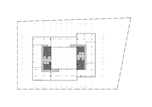
建筑规划面向城市景观打开,东西两侧都设置了办公大堂出入口,并采用人车分流的策略,东侧空出广场,既与城市绿化带相连,为项目塑造林木自然景观,也可以承接附近地铁出站和商业人流; 西侧则设置基地车道入口,并直接与大堂落客区、地面立体社会停车场和地下车库入口相连,为访客提供便捷的交通动线。
建筑采用“开放式体量”设计,建筑中部打开,形成一个巨型公共门户,欢迎公众进入庭院空间,同时门户标志着大学区入口,满足政府要求。开放的中央庭院由大型景观台阶构成,由首层连接至五层,与首两层的零售空间无缝连接, 并串连上层的办公辅助功能与户外交流空间。这个立体化的庭院空间,不仅形成了餐饮阳台、社交台阶,表演场所,知识园莆和联合办公连桥等多功能区域,同时为办公人员与小区群体创造了全新的社交与休闲体验。


通过垂直与水平空间的相互穿插,建筑形态由传统塔楼演化成交错堆叠的方块。办公空间沿基地东西两侧楼栋分层堆叠,并于高层创建闭环式相连的体量,灵活的布局与面积区间,满足不同规模和发展阶段的企业需要,并建构成多元化的办公用户社区。 办公低区为联合办公,以双层巨型玻璃连桥作为标志,贯通东西两边塔楼。高区甲级办公则服务中小企业和总部办公,在两个楼栋之间的中庭内壁设计了多个共享辅助功能盒子与平台,可作为如会议室,商务休息室、演讲厅、冥想空间、运动/健身房、咖啡吧、空中花园等,局部楼层设立了如“浙大瞭望台”的阳台空间,平面布局的多样性,让每家企业都能拥有专属的个性空间。
在建筑低区中,商铺立面、广场铺地、乃至景观家具小品,多采用明暗相间的像素格纹语言,通过大小和比例的变化,在统一中带层次感,创造出别树一格的都市气质。而中庭内壁采用了棕色的格栅材料,与浅银金属色的城市立面形成对比,勾勒出内核的轮廓。浅灰色的庭院大台阶嵌入了温度感的木质材料,为企业员工、浙大学子和周边居民塑造鲜活有温度的社区交流场所。


可持续发展考虑
建筑从整体规划到幕墙设计都充分考虑可持续发展的需要,打开庭院不单为建筑内外空间提供了充足的自然采光和通风,有效降温省能,更为各层办公企业创造视线交流的可能性,贯彻互动空间的概念。外立面为窗墙系统,并结合了视野引导和太阳路径,令建筑更为节能环保。用于东/西立面的遮阳垂直构件 45 度旋转,和水平角度的隔层铝板,均可以控制太阳角度,减省能耗。结构设计也考虑到减少现场施工,缩短工期需要,采用了一种混合系统设计,利用现浇钢筋混凝土框架-剪力墙结构和装配整体式楼盖体系,在 5~6 层以及 11~14 层设有连接体,设计时连接方式采用刚性连接,连接体结构采用钢管空腹桁架,并在桁架端跨设置跨层斜腹杆,既满足结构受力要求,又实现了内部空间最大利用,为未来弹性的办公空间提供基础。


设计挑战与机遇
在设计初期,在有限的地块面积与高度限制下,对建筑功能如办公、零售和公共空间整合提出了较高要求,同时希望可以为市场提供多元化办公产品。团队首先对办公市场及用户未来趋势进行巨细无遗的分析,通过多轮的建筑体量与戶型研究,并与甲方共同协作讨论,从而得出最终方案。项目建造期间历经疫情与经济周期中的市场变化,透过系统性的成本优化过程,设计团队在结构、外立面以至灯光等设计中进行调整,杭州开物创新大厦最终历经 1500 多个日夜,通过建筑、景观、结构、设备、施工、运营等专业团队通力合作,协助甲方按时按预算完美落地。


设计产生影响
项目开放后,即便在经济低迷时期,所有空间均已迅速出租。该地标贯彻“共享融合”理念,已成为杭州城西一个 24/7 的互动社交场所,为企业家、大学生和社区服务,同时提升了区域活力与社区归属感。项目亦成功突破传统办公楼的功能限制,打造了多元化的生活与工作场景,重新定义了联合办公与城市公共空间的关系,为新型办公综合体树立了又一设计标杆。




































