
•
香港, 台湾
-
建筑师: New Office Works
- 面积: 8746 ft²
- 项目年份: 2024
-
摄影师:Leon Xu Liang

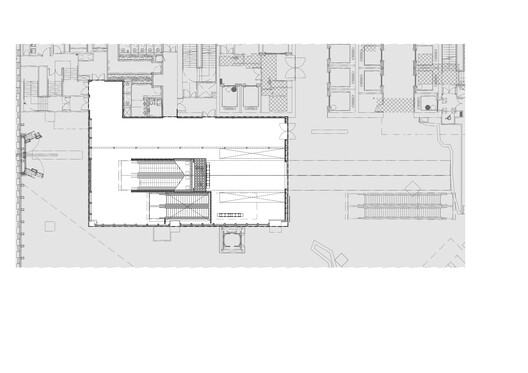
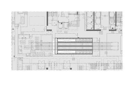
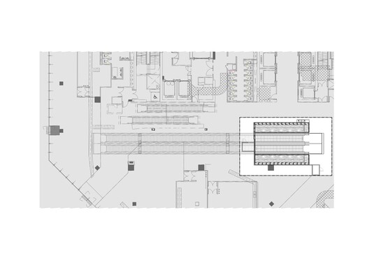
来自建筑师。The Twins 双子汇位于启德(Kai Tak),是全新旗舰店崇光百货的所在地,也是香港最大的日式百货公司。该旗舰店坐落于一号塔楼内,店内特色是一条长长的自动扶梯,连接着十楼引人注目的三层高中庭与十二楼的餐厅公园。此设计旨在将这片区域转变为沉浸式体验,带领访客从典型的百货公司环境穿越到日式 Engawa 风格的场景,邀请他们穿梭于一个仿佛置身灯笼内部的空间。与中庭相邻的是 TT SITE,一个由我们设计、目前正在建设中的25000 平方英尺的多功能展览空间。



连接十楼中庭与十二楼的是由三个体积构成的空间序列。这些体积由木网格构成,内部填充背光障子板,每个体积都如同发光灯笼的内部。第一个体积的高度最低,访客从中庭的宏伟空间步入一个更加私密的空间,然后再逐渐开阔至十二楼。障子板由倾斜的木框组成,向上看与向下看时,空间展现出截然不同的材质感。向上移动的过程中,空间以木材和实体感为主,而向下移动时,则以障子纸和光线为特色。



在一系列设计研究中,我们探索了各种照明和材料策略,以强调十楼中庭与十二楼到达区的过渡。例如,十楼的柱廊结构和墙壁上的水平带营造出中庭的开阔感和自动扶梯空间的封闭感。我们研究了正面立面是应作为墙壁的一部分、作为展开的天花板的一部分,还是作为一个独立特征来处理。我们还研究了将照明图案与墙面板设计相结合与将照明和墙面板构图作为不同层次来处理的不同效果。
























