北京十院宅 / 在建筑设计事务所
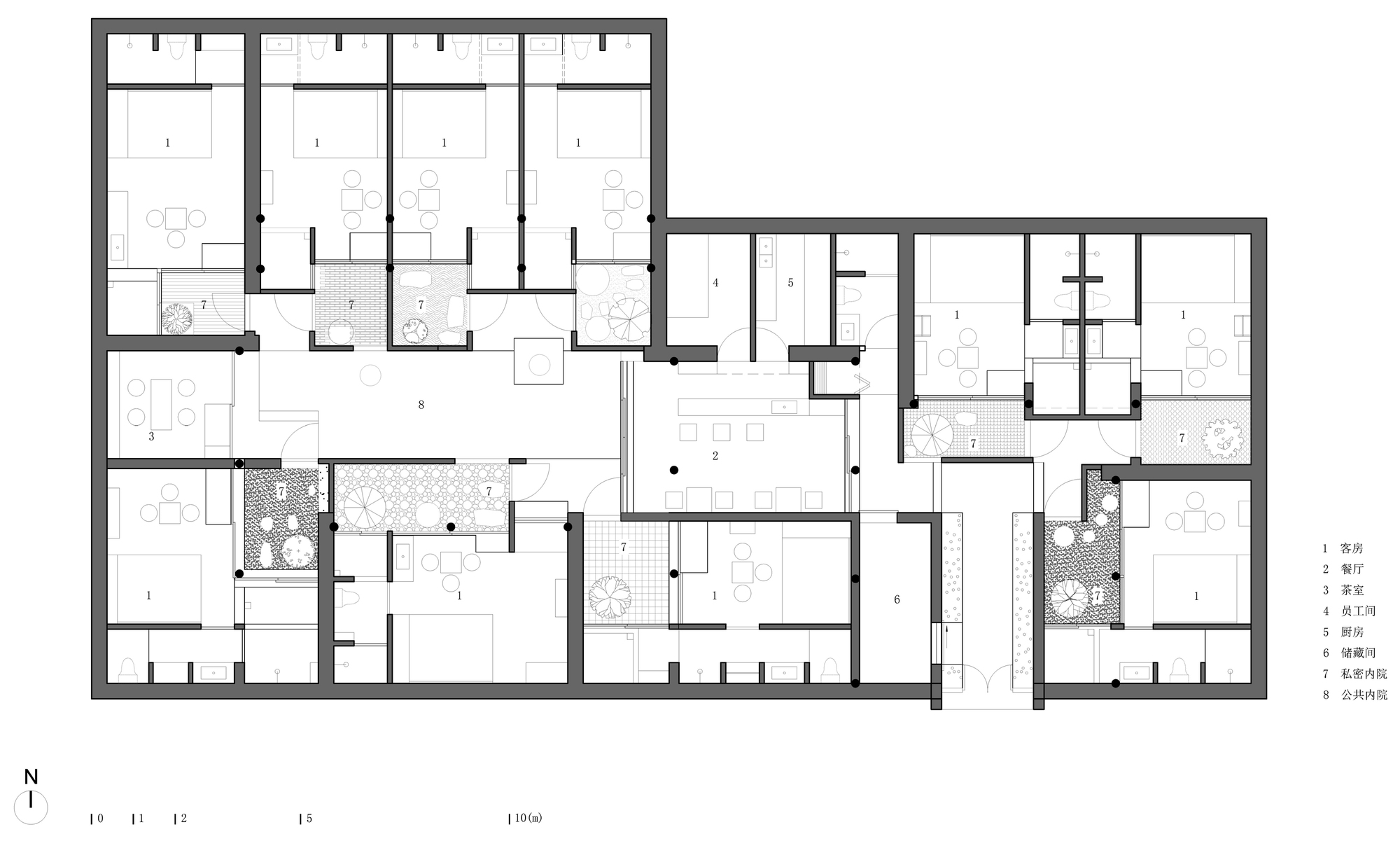
一层平面
22
/ 24
...
收藏这幅画!
放大图像
|
原始尺寸
图纸
更新项目
分享
分享
分享图片
Douban
Weibo
QQ
Wechat
或
复制 URL
收藏这幅画!
上一个项目
未来,计算机算法能设计平面图,建筑师是不是真的会失业?
选定的项目
下一个项目
天津蓟县洛奇溪堂民宿酒店 / 北京方石建筑
选定的项目
✕
✕