
- 面积: 105 m²
- 项目年份: 2025 年
-
摄影师:Yosuke Ohtake

这是一座由人类感性塑造的住宅,它通过在不同尺度上——从城市与建筑,到材料与日常活动,持续展开对话,来与周边环境达成和解。

该地块位于一个街道与小径纵横交错的精细城市肌理之中。尽管它靠近市中心,但仍保留着老城区的氛围。房屋紧贴街道边缘而建,人们通过这些小径进行日常互动。高地需求促使频繁重建,形成了一幅联排住宅、新居、小店铺与历史建筑共存的城镇景观。感知到这个街区的氛围后,我隐隐萌生出建造一座能自然融入其中的住宅的想法。


“融入” 既不合逻辑也不稳定;它会随时间和人的变化而改变,在开放可能反转为封闭的城市中,这种 “融入” 会变得更加复杂。因此,我致力于打造一座能持续调整建筑、城市与居民之间关联条件的住宅。




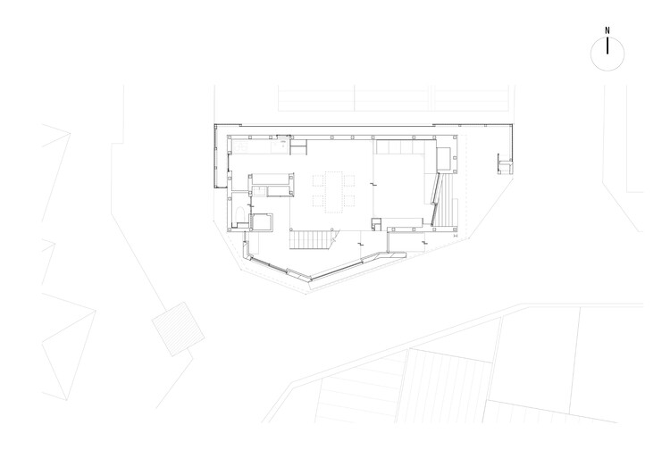
项目从沿不规则地块(地块三面环路)的轮廓塑造建筑开始,将首层和二层进行划分,以避免对前街造成压迫感。二层体量采用与屋顶相同的材料,微微倾斜,以开阔天空视野,并形成与居住空间尺度以及前方小神龛相匹配的屋檐。设计在响应城市条件与法规的同时,寻求与周边街道氛围的延续性,让室内日常生活与室外生活相互交织。



在此基础上,各元素以一种仿佛在与环境及其居民持续对话的方式,凭直觉进行布置。这种直觉性的过程让设计得以日复一日地演变;并非从头开始,而是每次调整时都保留先前修改的痕迹,使其清晰可见。久而久之,一个空间场域应运而生,其中对比元素反复出现并达成平衡,窗户与遮蔽它们的悬挑墙壁、开口与阻挡它们的表面、坚固的混凝土墙与可坐的长椅、透明与不透明的栏杆、孔洞与镜面延伸部分,这些元素在室内外相互交织,彼此平衡。

这种关联性结构也体现在室内。尽管空间本质上是连续的,但它通过不同天花板高度、地面标高和尺度的区域展开,每个区域都与其他区域保持着自身的关系。设计关注环境,接纳了矛盾的感受,既渴望连接又抗拒连接,并将它们融入空间构成之中。精心考量的材料和细节贯穿这些空间,既提供稳固的支撑点,又引入一种柔和的张力。

设计避免让材料、细节和空间构成成为主导,而是让它们固有的特质得以显现。它们的相互作用形成了一个充满活力的环境,其中各个组成部分保持着有序的对话。


传统材料土墙和木材,因其气候适宜性和内在的厚重感而被选用。从手工切割的榫卯结构到抹灰工艺,精湛的技艺赋予了复杂的空间和材料构成以形态。只有通过亲身参与,一个地方才会变得熟悉。在由建筑、城市、材料和人们共同塑造的对话中,我希望能凭着日常直觉选择如何与其中的元素建立联系,从而自然地融入这个地方。

















