

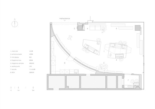
场地位于西湖东侧,与湖面仅百步之遥。商铺空间规整,两面沿街,主入口设于商场内部。平面布局策略简单直接:采用连贯的弧形墙体串联空间入口与东侧街景,并自然地划分出前后场。


西湖三面云山,湖山依傍。潋滟的湖光与岸边浓郁的树荫交织,构筑出澄澈与阴翳相融的光影意境。在明暗对比中,人的感知亦是流动的。为了营造静谧且灵动的空间质感,我们对材质与光线的调配极尽克制与谨慎。


轨道灯隐匿于后场,投向天花;光线穿过弧墙顶部的梭形百叶,折射出层次丰富的光影。即便行人漫步街头,亦能捕捉到室内如湖水般流转的光律。水槽上方悬浮着明暗渐变的“游船”,其骨架结构取意自西湖船篷,柔和的光线透过酱色柿染布,在台面上氤氲弥漫。



古建偏爱大漆,其深沉浓郁的质地在微光下呈现出含蓄内敛的东方气韵。弧墙借由木材的天然纹理与大漆的温润反射,将室外的自然光与绿意“借”入室内。为保持视觉的连贯性,货架隔板与墙面特意脱开2cm;香水柜门则选用湖泊绿彩釉玻璃,如滤镜般加深了绿影的重叠。



我们邀请了杭州大漆艺术家张钧雷老师,将大漆髹饰于布胎。在水槽台面、层板与器物表面,坚实漆壳下隐现的纺织肌理提供了更为亲切的触感。香水盒作为空间中分量最重的物件,开启瞬间便露出华美的金色 —— 随视角切换,金色呈现出深浅不一的明度与笔触。大漆的色泽将随岁月流转缓慢蜕变,为空间赋予了另一个维度的厚度与重量。











