

来自建筑师。Le Labo 代官山精品店是其在美国以外的首个门店,时隔18年后首次进行翻新,是继京都町屋项目后长坂常 / Schemata Architects 与该品牌的第二次合作。此次翻新以品牌期望将新鲜香氛调配工艺在空间设计中凸显为核心导向,同时确保该精品店能完美融入东京的街景风貌。



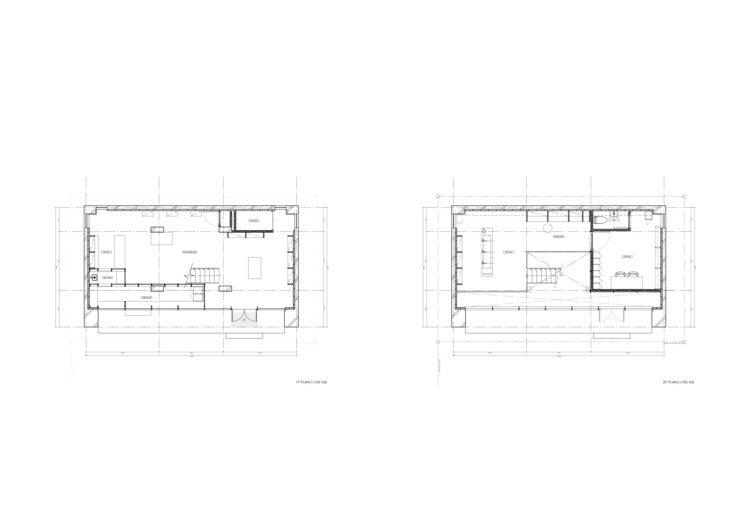
首先,设计团队将香氛实验室定位为焦点区域。通过把原本位于店铺后方的实验室迁移至前方,香氛调配的过程从街道上便可一目了然,吸引路人进店一探究竟。在将东京元素融入店铺方面,Le Labo 提议采用木材和混凝土作为材料,并指出这座城市的显著特征在于两股对立力量的交融:蓬勃的活力与深邃的宁静并存。


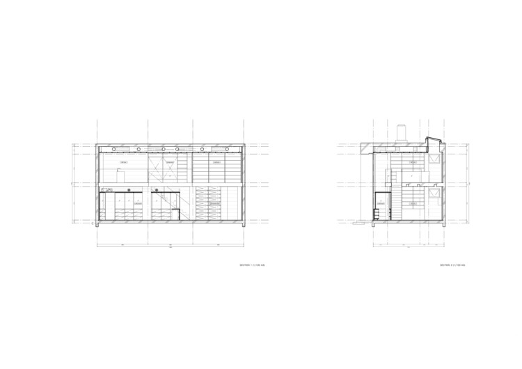
经现场勘查,在现有建筑结构中发现两种截然不同的混凝土类型。一种是作为可见外饰面使用的钢筋混凝土,采用建筑模板浇筑而成,表面光滑,带有昭和时代特有的“工业质感”,这种质感掩盖了人工劳作及其创作过程。另一种则是纯粹为满足必要结构要求而浇筑的钢筋混凝土结构本身,原本计划用其他饰面覆盖。在这类混凝土上,模板材料的痕迹清晰可见,仍留有人工匠心的痕迹。它呈现出一种质朴无华的魅力,钢筋混凝土材料的肌理自然地展现出来。



设计团队被后者所展现的直白质朴所吸引,希望在混凝土表面保留生产过程中自然形成的痕迹。为此,设计采用经“表千代”(Uzukuri,一种凸显木纹的刨削工艺)处理过的红雪松来制作模板。将混凝土浇筑进强调木材天然凹凸纹理的模板中,制作出预制面板,木纹被转印到面板表面,随后将其用作墙面。此外,模板木材本身还被重新利用制成家具,让材料的循环利用与匠造痕迹融入空间之中。模板木材与混凝土元素之间的关联,体现了东京特色,通过木纹肌理形成鲜明对比。

此外,天花板照明凹槽、现有结构中留存的模板印记以及管道沟槽等,均未加以遮掩,而是被积极融入整体设计之中。这个空间坦诚地接纳了这座建筑历经岁月沉淀的痕迹,并将其传递至新的空间之中。由此,混凝土与木材的互动贯穿整个空间,在营造当代东京环境的同时,彰显出 Le Labo 所珍视的匠造精神。




















