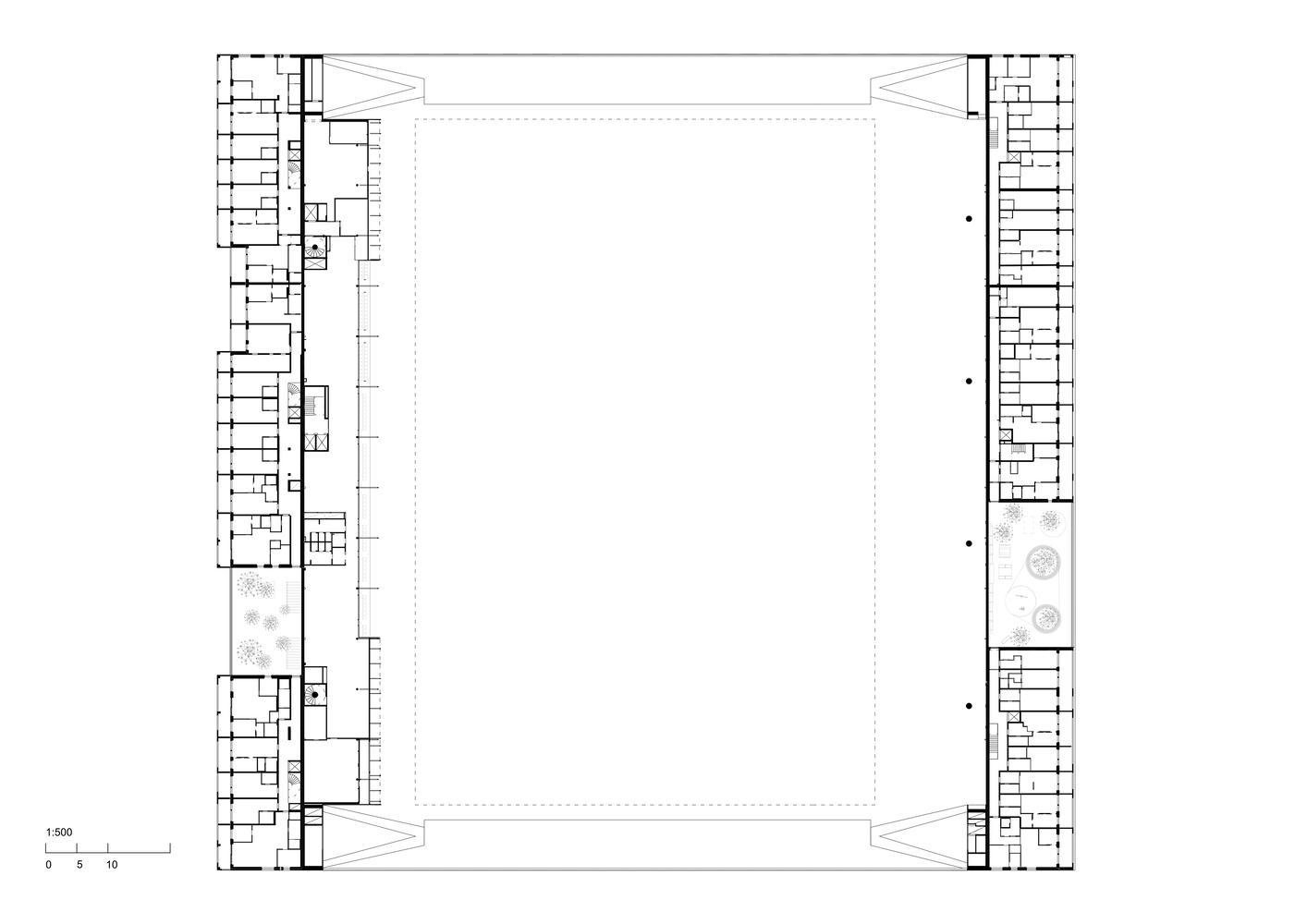
Tammela 体育场 / JKMM Architects
放大图像
|
原始尺寸
分享
分享
分享图片
Douban
Weibo
QQ
Wechat
或
复制 URL
✕
✕