愚园路“城市旮旯”空间改造 / 灰空间建筑事务所
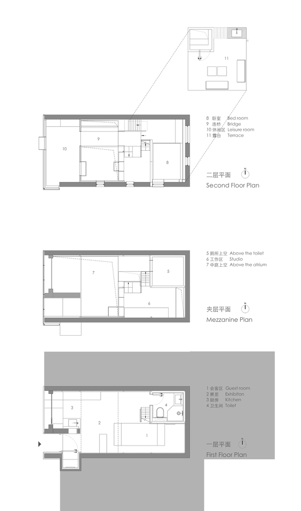
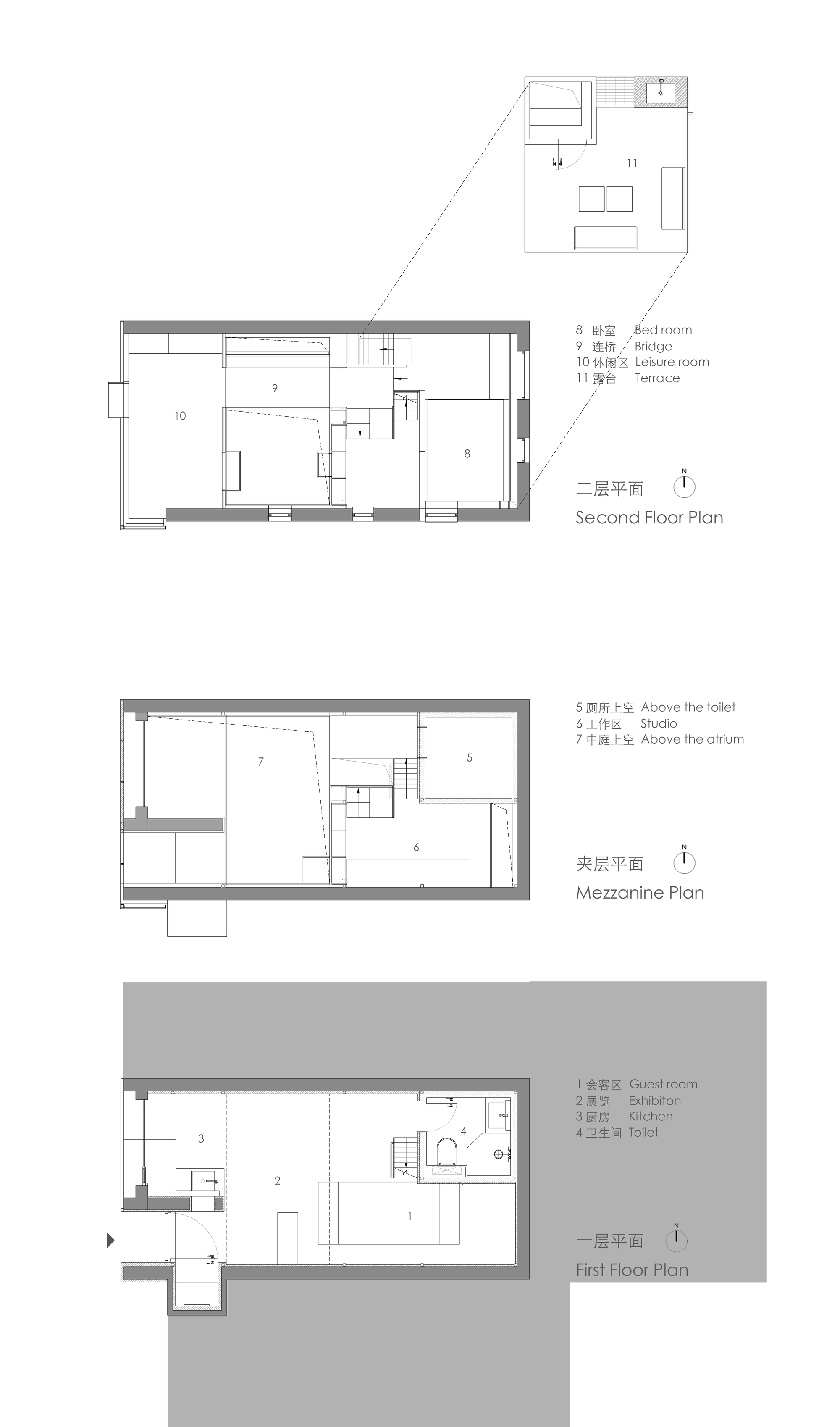
平面图
29
/ 34
...
收藏这幅画!
放大图像
|
原始尺寸
图纸
办公室内设计
分享
分享
分享图片
Douban
Weibo
QQ
Wechat
或
复制 URL
收藏这幅画!
✕
✕