深圳石厦小学:都市合院校园 / 王维仁建筑设计研究室
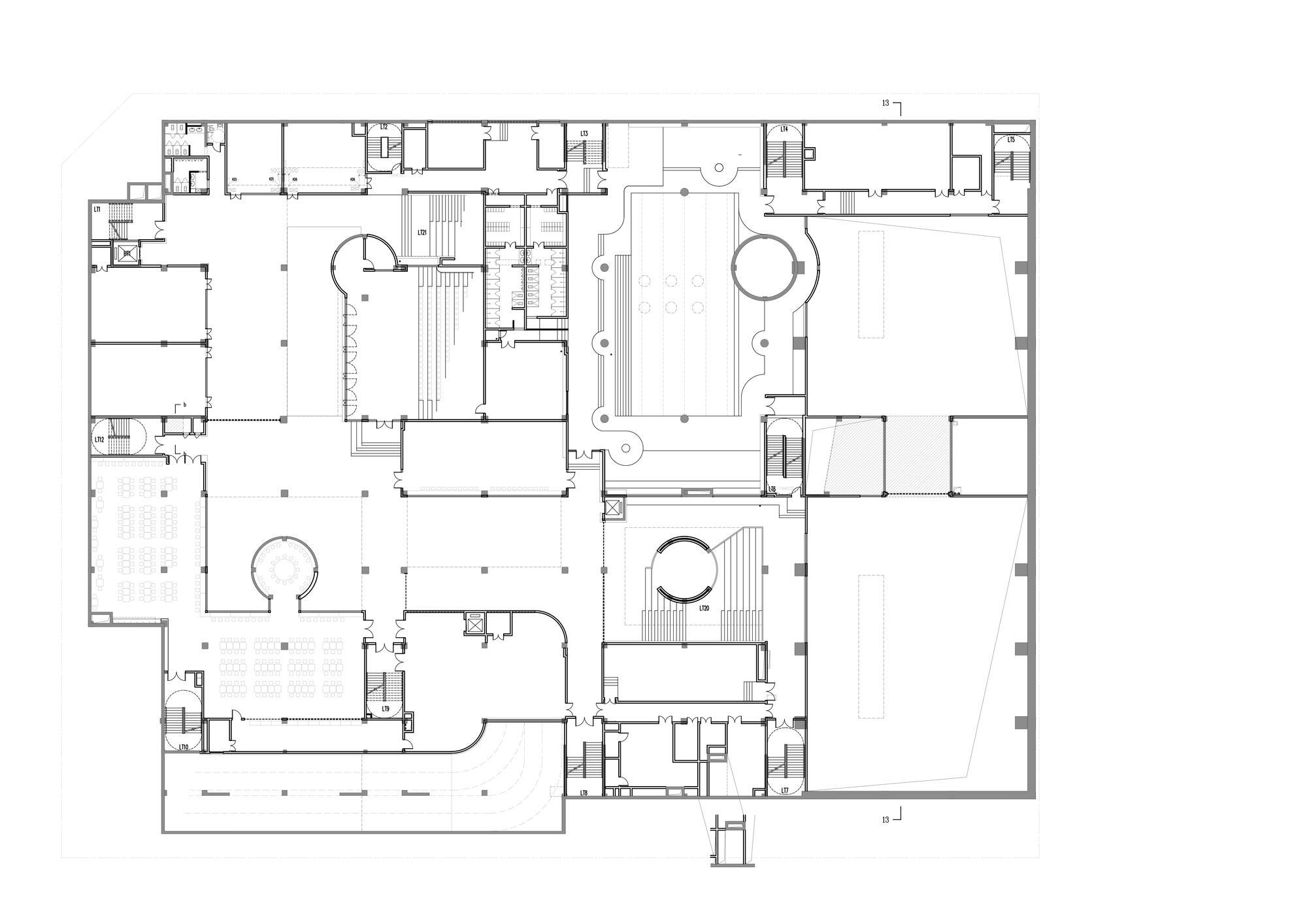
平面图
39
/ 45
...
收藏这幅画!
放大图像
|
原始尺寸
图纸
小学及初中
分享
分享
分享图片
Douban
Weibo
QQ
Wechat
或
复制 URL
收藏这幅画!
上一个项目
泰康之家·燕园三期及社区活力中心 / 方未建筑设计+三磊设计
选定的项目
下一个项目
子安小学 / 山本理显设计工场
选定的项目
✕
✕