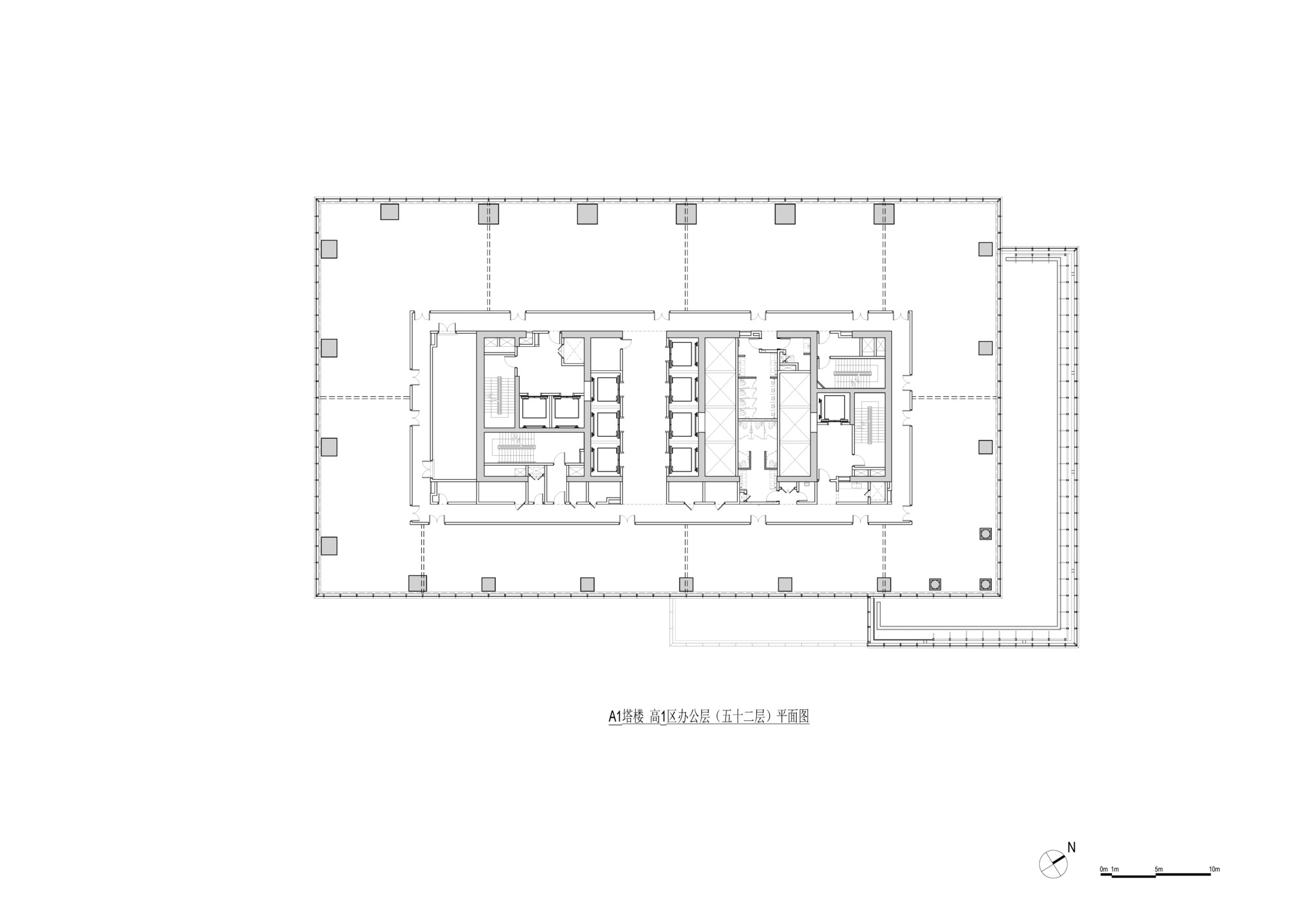
武汉企业天地1号 / 佩里克拉克建筑师事务所
平面图
34
/ 43
...
收藏这幅画!
放大图像
|
原始尺寸
图纸
公共机构设施
分享
分享
分享图片
Douban
Weibo
QQ
Wechat
或
复制 URL
收藏这幅画!
上一个项目
西安市未央路小学综合楼 / 中国建筑西北设计研究院 屈培青工作室
选定的项目
下一个项目
Surat 钻石交易所 / Morphogenesis
选定的项目
✕
✕